Dossier de presse no. 3962-02

Journalistes! Découvrez ce projet prêt à publier. Créez gratuitement un compte média v2com pour télécharger les images haute résolution.

Créez un compte média
Dossier de presse - Communiqué de presse - Cléo Katcho Design Architectural revisite la brasserie française en aménageant une nouvelle adresse Chez Lionel au centre-ville de Montréal - Cleo Katcho Design Architectural Inc.

Dossier de presse | no. 3962-02

Cléo Katcho Design Architectural revisite la brasserie française en aménageant une nouvelle adresse Chez Lionel au centre-ville de Montréal

Montréal, Canada

Cleo Katcho Design Architectural Inc.

Repenser la brasserie française

Montréal, Canada, 08-04-2026 - 

À deux pas du Centre Bell, une nouvelle succursale de la brasserie française Chez Lionel a été aménagée par le studio de design Cléo Katcho dans un bâtiment emblématique du centre-ville de Montréal. Pensé comme une réinterprétation contemporaine de la brasserie française, le projet a transformé en profondeur un espace existant afin de proposer une expérience plus fluide et connectée, où le bar constitue le cœur vivant du restaurant.

 

Cette fluidité apparente repose sur un travail rigoureux de recomposition de l’espace. À partir de contraintes architecturales marquées, le projet au 1250 boulevard René-Lévesque s’est structuré autour de décisions précises qui réorganisent les circulations et redéfinissent les relations entre ambiance et convivialité.

 

Composer avec la contrainte

Installé dans un immeuble des années 1990, le restaurant présentait une organisation fragmentée, où salle à manger, bar et mezzanines se juxtaposaient sans véritable cohérence. Dès les premières visites, une contrainte majeure s’est imposée : un noyau de granit, abritant un escalier de secours, divisait l’espace et compliquait toute continuité. Inamovible, il a fallu faire avec.

 

« L’âme du projet commence par le plan. Face à cette masse centrale, il a fallu repenser la manière de structurer l’espace pour en assurer la lisibilité et la continuité, en transformant une contrainte majeure en élément d’organisation du lieu », explique la designer Cléo Katcho.

 

Le projet s’est articulé autour d’un geste déterminant : investir le lobby de l’immeuble pour y aménager un espace lounge et bar en continuité avec le restaurant. D’abord perçue comme risquée, cette intervention s’est imposée comme l’élément structurant du projet. En prolongeant le restaurant dans cet espace semi-public, l’équipe a redéfini les seuils entre intérieur et extérieur, tout en créant une présence visible depuis la rue.

 

Recentrer lexpérience

Le repositionnement du bar au rez-de-chaussée transforme la dynamique du lieu. Autrefois perché sur une mezzanine isolée, il occupe désormais une position centrale, servant de point de passage et de rassemblement.

 

« On veut être dans l’ambiance dès l’arrivée », rappelle la conceptrice. « Le bar s’impose maintenant comme un élément structurant, autour duquel s’organise l’expérience du restaurant. »

 

Autour du noyau central, les espaces s’articulent dans un enchaînement continu entre le lounge, le bar et la salle à manger. Le regroupement des deux mezzanines en un seul niveau a renforcé cette cohérence. Les configurations précédentes fragmentaient l’expérience ; la nouvelle mezzanine, ouverte sur le rez-de-chaussée, maintient un lien visuel constant entre les niveaux.

 

Cette recherche de continuité se retrouve également dans le traitement des vues. Depuis l’escalier, les perspectives plongent vers le bar ; depuis le lobby, l’activité intérieure est visible, invitant à entrer. L’espace s’ouvre visuellement, sans jamais perdre son identité.

 

Cette ouverture a également soulevé un enjeu lié à l’ambiance lumineuse. Le lobby, fortement éclairé, risquait de contaminer l’atmosphère plus feutrée souhaitée pour la brasserie. Une coordination étroite avec les gestionnaires de l’immeuble a permis d’ajuster les niveaux d’éclairage, afin de créer une transition progressive entre les deux univers. Résultat : une entrée qui conserve sa transparence sans sacrifier l’intimité du restaurant.

 

Actualiser les codes de la brasserie

Sur le plan matériel, le projet s’inscrit dans la continuité de l’identité développée pour les différentes succursales de Chez Lionel, avec l’objectif de faire évoluer l’image de la brasserie française tout en conservant ses repères. L’aménagement des succursales de la chaîne privilégie un équilibre entre références classiques et interventions contemporaines.

 

La brique de la nouvelle adresse, appuyée par l’intégration d’éléments métalliques, introduit une dimension plus urbaine, tandis que les éléments dorés, les luminaires de cristal conçus sur mesure et les têtes de bar grillagées rappellent les codes traditionnels de la brasserie. Cette combinaison permet de maintenir une certaine familiarité tout en actualisant le langage formel.

 

La végétation, intégrée de manière structurée, évoque les grandes verrières des brasseries européennes. Son traitement, plus maîtrisé et épuré, s’inscrit dans une esthétique contemporaine axée sur la clarté et la lisibilité des espaces.

 

Certaines contraintes du bâtiment ont été intégrées comme composantes du projet. Les planchers et colonnes de granit ont été conservés pour leur rôle structurel et leur valeur identitaire, leur altération risquant d’en compromettre le cachet. Leur présence contribue à définir une matérialité forte et à inscrire le restaurant dans son contexte, tout en lui conférant une identité distincte au sein des différentes adresses de la chaîne.

 

Un soin particulier a également été apporté à l’acoustique. La configuration du lieu — surfaces minérales, vitrages et volumes ouverts — présentait des enjeux de réverbération. Des dispositifs absorbants, intégrés dans des teintes sombres, ont été mis en place afin d’assurer un confort sonore sans altérer la perception des espaces.

 

Le projet propose une organisation plus ouverte de la brasserie traditionnelle, où le repositionnement du bar, l’ouverture des circulations et l’intégration des contraintes existantes redéfinissent les parcours et les manières d’occuper l’espace. La diversité des assises, incluant banquettes, tables et espaces lounge, accompagne cette transformation en permettant une fréquentation plus souple, du repas à l’apéritif.

 

Avec cette nouvelle succursale de Chez Lionel, Cléo Katcho démontre qu’un projet peut trouver sa justesse non pas en effaçant les contraintes, mais en les intégrant jusqu’à en faire le point de départ de l’expérience.

 

À propos de Cleo Katcho Design Architectural Inc.
Cleo Katcho Design Architectural Inc. est un studio de design qui intervient dans des projets corporatifs, commerciaux, médicaux, funéraires, multirésidentiels et hôteliers. Son approche vise à concevoir des espaces à la fois fonctionnels, attentifs aux besoins humains et adaptés aux exigences de performance, en tenant compte de l’expérience, de l’efficacité des opérations et de la valeur des lieux. Depuis plus de six ans, l’équipe — composée de designers d’intérieur et de technologues en architecture — accompagne ses clients à chaque étape, de la conception initiale jusqu’à la réalisation. Sa pratique repose sur une méthode structurée, ancrée dans une lecture fine des contextes et orientée vers des solutions concrètes. En croisant expertise technique, compréhension des réalités d’affaires et sensibilité au design, CKDA développe des environnements capables de s’adapter aux transformations des organisations et de soutenir leur évolution dans le temps.

- 30 -

Pour plus d’informations

  1. www.cleokatcho.com
  2. www.instagram.com/cleokatcho_interior...

Contact média

  • Cleo Katcho Design Architectural Inc.
  • Cleo Katcho, Fondatrice et présidente
  • cleo@cleokatcho.com
  • +1.514.817.8232

Pièces jointes

Images basse résolution ~ 2,5 Mo
Images tif haute résolution ~ 820 Mo
Images jpg haute résolution ~ 64 Mo

Termes et conditions

Pour diffusion immédiate

La mention des crédits photo est obligatoire. Merci d’inclure la source v2com lorsque possible et il est toujours apprécié de recevoir les versions PDF de vos articles.

Dossier de presse | 3962-02 - Communiqué de presse | Cléo Katcho Design Architectural revisite la brasserie française en aménageant une nouvelle adresse Chez Lionel au centre-ville de Montréal - Cleo Katcho Design Architectural Inc. - Design d’intérieur commercial - Crédit photo : <blockquote style="">Maxime Brouillet<br style=""></blockquote>
Crédit photo :
Maxime Brouillet
Télécharger

Image très haute résolution : 20.0 x 15.0 @ 300dpi ~ 44 Mo

Dossier de presse | 3962-02 - Communiqué de presse | Cléo Katcho Design Architectural revisite la brasserie française en aménageant une nouvelle adresse Chez Lionel au centre-ville de Montréal - Cleo Katcho Design Architectural Inc. - Design d’intérieur commercial - Crédit photo : Maxime Brouillet
Crédit photo : Maxime Brouillet
Télécharger

Image très haute résolution : 20.0 x 15.0 @ 300dpi ~ 43 Mo

Dossier de presse | 3962-02 - Communiqué de presse | Cléo Katcho Design Architectural revisite la brasserie française en aménageant une nouvelle adresse Chez Lionel au centre-ville de Montréal - Cleo Katcho Design Architectural Inc. - Design d’intérieur commercial - Crédit photo : Maxime Brouillet
Crédit photo : Maxime Brouillet
Télécharger

Image très haute résolution : 20.0 x 15.0 @ 300dpi ~ 56 Mo

Dossier de presse | 3962-02 - Communiqué de presse | Cléo Katcho Design Architectural revisite la brasserie française en aménageant une nouvelle adresse Chez Lionel au centre-ville de Montréal - Cleo Katcho Design Architectural Inc. - Design d’intérieur commercial - Crédit photo : Maxime Brouillet
Crédit photo : Maxime Brouillet
Télécharger

Image très haute résolution : 20.0 x 15.0 @ 300dpi ~ 55 Mo

Dossier de presse | 3962-02 - Communiqué de presse | Cléo Katcho Design Architectural revisite la brasserie française en aménageant une nouvelle adresse Chez Lionel au centre-ville de Montréal - Cleo Katcho Design Architectural Inc. - Design d’intérieur commercial - Crédit photo : Maxime Brouillet
Crédit photo : Maxime Brouillet
Télécharger

Image très haute résolution : 20.0 x 15.0 @ 300dpi ~ 51 Mo

Dossier de presse | 3962-02 - Communiqué de presse | Cléo Katcho Design Architectural revisite la brasserie française en aménageant une nouvelle adresse Chez Lionel au centre-ville de Montréal - Cleo Katcho Design Architectural Inc. - Design d’intérieur commercial - Crédit photo : Maxime Brouillet
Crédit photo : Maxime Brouillet
Télécharger

Image très haute résolution : 20.0 x 15.0 @ 300dpi ~ 54 Mo

Dossier de presse | 3962-02 - Communiqué de presse | Cléo Katcho Design Architectural revisite la brasserie française en aménageant une nouvelle adresse Chez Lionel au centre-ville de Montréal - Cleo Katcho Design Architectural Inc. - Design d’intérieur commercial - Crédit photo : Maxime Brouillet
Crédit photo : Maxime Brouillet
Télécharger

Image très haute résolution : 20.0 x 15.0 @ 300dpi ~ 53 Mo

Dossier de presse | 3962-02 - Communiqué de presse | Cléo Katcho Design Architectural revisite la brasserie française en aménageant une nouvelle adresse Chez Lionel au centre-ville de Montréal - Cleo Katcho Design Architectural Inc. - Design d’intérieur commercial - Crédit photo : Maxime Brouillet
Crédit photo : Maxime Brouillet
Télécharger

Image très haute résolution : 20.0 x 15.0 @ 300dpi ~ 52 Mo

Dossier de presse | 3962-02 - Communiqué de presse | Cléo Katcho Design Architectural revisite la brasserie française en aménageant une nouvelle adresse Chez Lionel au centre-ville de Montréal - Cleo Katcho Design Architectural Inc. - Design d’intérieur commercial - Crédit photo : Maxime Brouillet
Crédit photo : Maxime Brouillet
Télécharger

Image très haute résolution : 20.0 x 15.0 @ 300dpi ~ 54 Mo

Dossier de presse | 3962-02 - Communiqué de presse | Cléo Katcho Design Architectural revisite la brasserie française en aménageant une nouvelle adresse Chez Lionel au centre-ville de Montréal - Cleo Katcho Design Architectural Inc. - Design d’intérieur commercial - Crédit photo : Maxime Brouillet
Crédit photo : Maxime Brouillet
Télécharger

Image très haute résolution : 15.0 x 20.0 @ 300dpi ~ 45 Mo

Dossier de presse | 3962-02 - Communiqué de presse | Cléo Katcho Design Architectural revisite la brasserie française en aménageant une nouvelle adresse Chez Lionel au centre-ville de Montréal - Cleo Katcho Design Architectural Inc. - Design d’intérieur commercial - Crédit photo : Maxime Brouillet
Crédit photo : Maxime Brouillet
Télécharger

Image très haute résolution : 15.0 x 20.0 @ 300dpi ~ 48 Mo

Dossier de presse | 3962-02 - Communiqué de presse | Cléo Katcho Design Architectural revisite la brasserie française en aménageant une nouvelle adresse Chez Lionel au centre-ville de Montréal - Cleo Katcho Design Architectural Inc. - Design d’intérieur commercial - Crédit photo : Maxime Brouillet
Crédit photo : Maxime Brouillet
Télécharger

Image très haute résolution : 20.0 x 15.0 @ 300dpi ~ 51 Mo

Dossier de presse | 3962-02 - Communiqué de presse | Cléo Katcho Design Architectural revisite la brasserie française en aménageant une nouvelle adresse Chez Lionel au centre-ville de Montréal - Cleo Katcho Design Architectural Inc. - Design d’intérieur commercial - Crédit photo : Maxime Brouillet
Crédit photo : Maxime Brouillet
Télécharger

Image très haute résolution : 20.0 x 15.0 @ 300dpi ~ 55 Mo

Dossier de presse | 3962-02 - Communiqué de presse | Cléo Katcho Design Architectural revisite la brasserie française en aménageant une nouvelle adresse Chez Lionel au centre-ville de Montréal - Cleo Katcho Design Architectural Inc. - Design d’intérieur commercial - Crédit photo : Maxime Brouillet
Crédit photo : Maxime Brouillet
Télécharger

Image très haute résolution : 20.0 x 15.0 @ 300dpi ~ 47 Mo

Dossier de presse | 3962-02 - Communiqué de presse | Cléo Katcho Design Architectural revisite la brasserie française en aménageant une nouvelle adresse Chez Lionel au centre-ville de Montréal - Cleo Katcho Design Architectural Inc. - Design d’intérieur commercial - Crédit photo : Maxime Brouillet
Crédit photo : Maxime Brouillet
Télécharger

Image très haute résolution : 20.0 x 15.0 @ 300dpi ~ 54 Mo

Dossier de presse | 3962-02 - Communiqué de presse | Cléo Katcho Design Architectural revisite la brasserie française en aménageant une nouvelle adresse Chez Lionel au centre-ville de Montréal - Cleo Katcho Design Architectural Inc. - Design d’intérieur commercial - Crédit photo : Maxime Brouillet
Crédit photo : Maxime Brouillet
Télécharger

Image très haute résolution : 20.0 x 15.0 @ 300dpi ~ 57 Mo

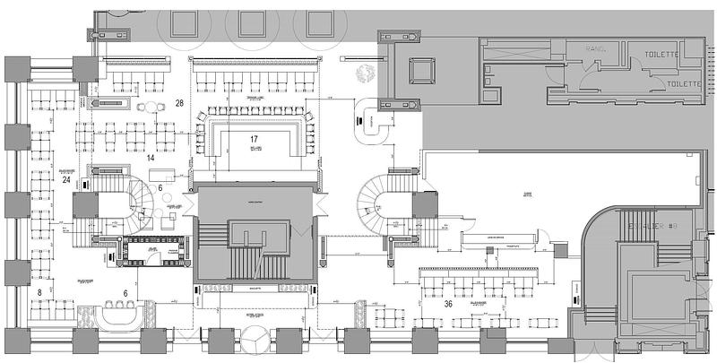
Dossier de presse | 3962-02 - Communiqué de presse | Cléo Katcho Design Architectural revisite la brasserie française en aménageant une nouvelle adresse Chez Lionel au centre-ville de Montréal - Cleo Katcho Design Architectural Inc. - Design d’intérieur commercial - PLAN DU REZ-DE-CHAUSSÉE - Crédit photo : Cleo Katcho Design Architectural Inc.
PLAN DU REZ-DE-CHAUSSÉE
Crédit photo : Cleo Katcho Design Architectural Inc.
Télécharger

Image moyenne résolution : 8.2 x 4.15 @ 300dpi ~ 440 ko

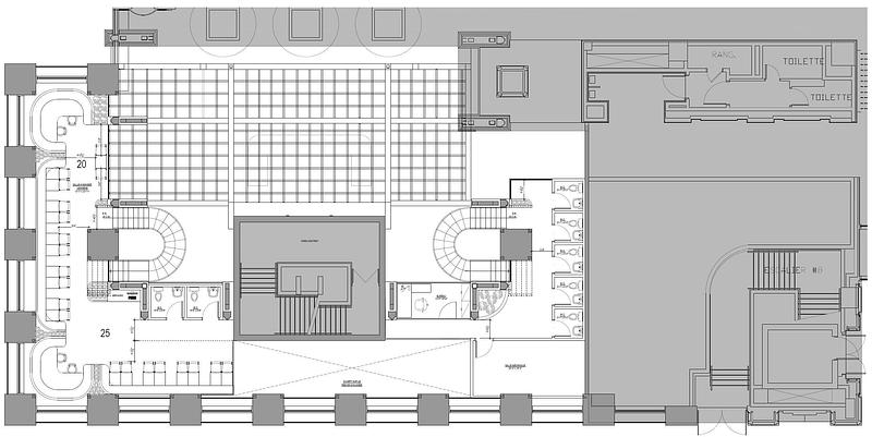
Dossier de presse | 3962-02 - Communiqué de presse | Cléo Katcho Design Architectural revisite la brasserie française en aménageant une nouvelle adresse Chez Lionel au centre-ville de Montréal - Cleo Katcho Design Architectural Inc. - Design d’intérieur commercial - PLAN DE LA MEZZANINE - Crédit photo : Cleo Katcho Design Architectural Inc.
PLAN DE LA MEZZANINE
Crédit photo : Cleo Katcho Design Architectural Inc.
Télécharger

Image moyenne résolution : 8.2 x 4.11 @ 300dpi ~ 440 ko

Vous pourriez également aimer...