Press kit no. 5548-01
Journalists, explore this publication-ready project. Create a free v2com media account to download high-resolution images.
Create a media account
Press Kit | no. 5548-01
Press release only in English
In Time of Turmoil, a New Office Building Challenges Established Building Code
Domaine Public Architects
LSB Regional Headquarters
Tyre witnessed uncontrolled urban development during the Lebanese civil war that spanned from 1975 to 1991. Post-war, newly adopted building codes favored an increase in the densification of existing neighborhoods and a disregard for public space that enabled the continued sprawl.
“Presented with a cornerstone lot in a vacant newly repurposed agricultural zone, we encountered both a challenge and a responsibility,” explains Karim Fakhry, principal at Domaine Public Architects.
“How do we mediate between the client’s emphasis on maximum visibility and exposure while emphasizing spatial values that could serve as a precedent for upcoming development?” asks Jean Nmeir, co-founder at DPA.
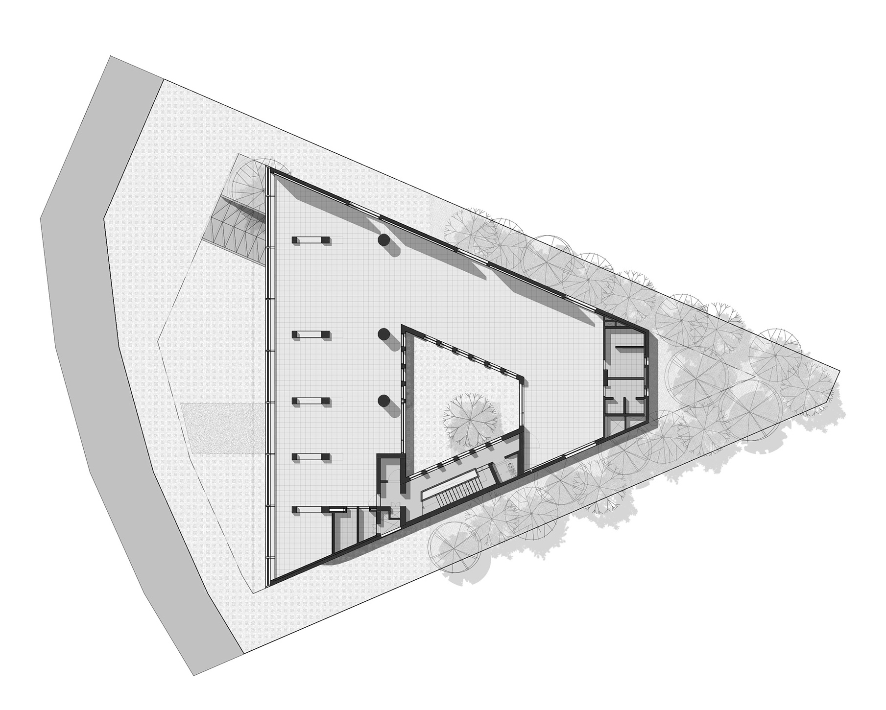
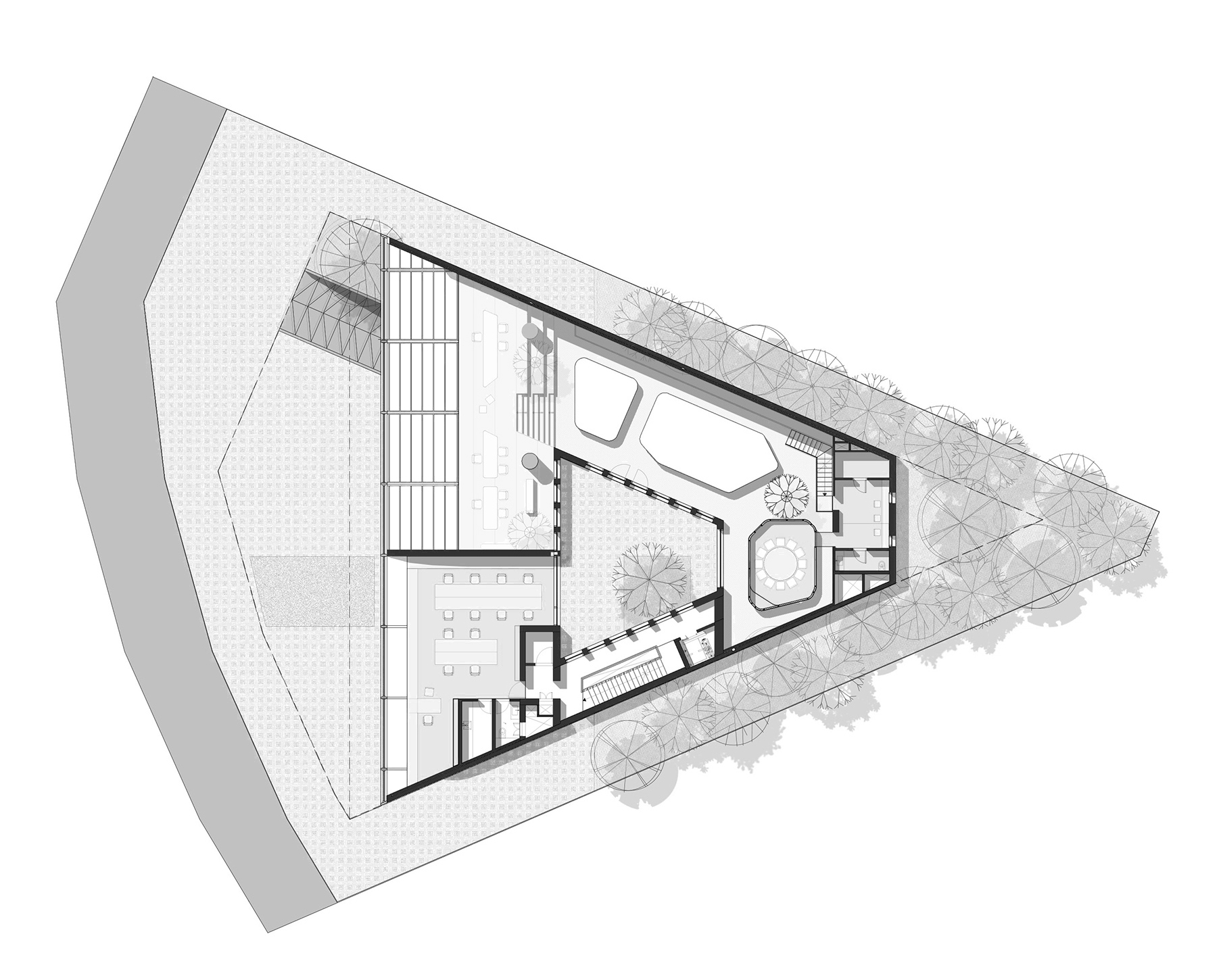
The headquarters establishes a balance between maximum visual presence and minimal physical presence. Limited to just three floors, it is more visually prominent than its actual scale. The structure, with its post-tensioned roof and nine-meter cantilever, allows for a minimum building footprint. It thus liberates the ground floor from all structural elements, enabling a shaded public plaza as an open flexible space that can host various curatorial programs.
A sense of community would be further activated when future buildings emerge on adjacent sites.
The financial crisis and severe capital controls enacted by the banking sector resulted in increased hostility between the financial sector and the people. The design strategy with its emphasis on public space is ever more relevant today as it re-establishes a dialogue with citizens and promotes social participation. A sequence of inclusive spaces promotes interaction as visitors transition from the open public plaza into a more private courtyard.
Three primary visual connections further emphasize the role of the public spaces and respond to the context and orientation. The trapezoidal courtyard creates a visual conduit between the multi-level offices and the central circulation space. The curved main façade hovers over the plaza to create a direct visual dialogue between the offices and the outdoors. The windows of the eastern and western façade frame the distant landscape while limiting solar gain.
The architectural elements perform dual roles. While they enhance public engagement, they advocate for sustainability. The cantilevered volume, angled based on sun exposure and optimum latitude, is thus self-shading. Facing south, it both maximizes solar gain in winter and limits heat gain in summer. The courtyard enables passive cooling and cross-ventilation while maximizing internal natural light. The steel screen replaces the client’s want for security gates and performs as a curved brise-soleil, shading from southern sun exposure. The skin and structure complement each other, as the structure enables the expansive public space, the skin adds depth to the main façade while lending a lightness to the heavy concrete building, an interplay between the building’s visual and physical presence.
The building code was the most challenging parameter to the conception of the public space. Existing laws stipulate that any outdoor area located under a built structure is considered interior space. It is therefore deducted from the total allowable built-up area. Given that it is not an enclosed space it has no monetary value. The development of civic and community space has thus been heavily discouraged by law, even accompanied by financial waste.
“To remedy the value loss, we implemented a series of spatial maneuvers. First, we omitted the roof over the third-floor terrace, excluding the space from the total floor-area ratio (FAR). We then replaced the balcony space on the ground floor with an open courtyard, gaining additional area,” elaborates Fakhry. The interior glass enclosures were included in the blueprints but not executed on site. This allowed interior space to be counted as a balcony allowance. “When the laws work against you, why not outmaneuver them for the greater public good?”
The recent events have forced the Lebanese to re-examine their country’s policies and existing laws. The LSB regional headquarters challenges established code and effectively enhances urban public space, social engagement, and sustainable development.
As the COVID-19 pandemic deepens the financial crisis, work on the landscape of the open plaza was halted. Once populated with greenery, the plaza will welcome the public and symbolize human-centric and environmentally conscious growth.
Technical sheet
Official name of the project: LSB Regional Headquarters
Location Contractors: Ashada
Client: Lebanese Swiss Bank
Area of project: Tyre, Lebanon
Budget: $2.5 million
Design team
Lead Architects: Karim Fakhry, Jean Nmeir
Design Team: Karim Fakhry, Jean Nmeir, Abeer Fanous, Dragan Vukovic, Rami Khoueiry
Project end date: January 2020
Photographer: Ieva Saudargaite
Collaborators/Vendors: ACID – Stainless-Steel Facade
Structural Engineers: BEATEC
Electro-Mechanical Engineers: WTA MEP Engineers
Landscape: Domaine Public Architects
About us
Domaine Public Architects, based in New York and Beirut, was founded in 2012 by graduates from Harvard University. Our diverse portfolio of work includes projects in the United States, the Ivory Coast, Nigeria, Mexico, and the Middle East.
For more information
Media contact
- Domaine Public Architects
- Karim Fakhry, Principal
- media@domainepublicarchitects.com
- 16179388503
Attachments
Terms and conditions
For immediate release
All photos must be published with proper credit. Please reference v2com as the source whenever possible. We always appreciate receiving PDF copies of your articles.
Very High-resolution image : 28.96 x 19.31 @ 300dpi ~ 23 MB
Very High-resolution image : 28.96 x 19.31 @ 300dpi ~ 25 MB
Very High-resolution image : 28.96 x 19.31 @ 300dpi ~ 32 MB
Very High-resolution image : 28.96 x 19.31 @ 300dpi ~ 23 MB
Very High-resolution image : 28.96 x 19.31 @ 300dpi ~ 26 MB
Very High-resolution image : 19.31 x 28.96 @ 300dpi ~ 43 MB
Very High-resolution image : 28.11 x 18.74 @ 300dpi ~ 28 MB
Very High-resolution image : 28.96 x 19.31 @ 300dpi ~ 25 MB
Very High-resolution image : 19.31 x 28.96 @ 300dpi ~ 25 MB
Very High-resolution image : 28.96 x 19.31 @ 300dpi ~ 24 MB
Very High-resolution image : 28.96 x 19.31 @ 300dpi ~ 25 MB
Very High-resolution image : 28.96 x 19.31 @ 300dpi ~ 24 MB
You may also like...
Bayrut, Lebanon, 2017-03-28
Sustainable Otunba Offices
Receives Commendation in AR Future Projects Awards
Domaine Public Architects
Amsterdam, Netherlands, 2026-04-24
Ceramic Innovation Meets High-Rise Design: 302-Metre-Tall Wasl Tower Now Completed
UNS
New York, United States, 2026-04-21
Ennead Architects Joining CannonDesign to Deepen Design’s Impact on Society
CannonDesign
Montreal, Canada, 2026-03-31
MSDL Architects Announces the Appointment of a New Partner
Menkès Shooner Dagenais LeTourneux Architectes
New York, United States, 2026-03-16
SOUR Unveils Pur: A Masterclass in Sensory Architecture and Acoustic Innovation Opens on the Aegean Coast
SOUR
Los Angeles, United States, 2026-02-20














