Press kit no. 1432-05

Journalists, explore this publication-ready project. Create a free v2com media account to download high-resolution images.

Create a media account
Press kit - Press release - Office @ 63 - Sanjay Puri Architects

Press Kit | no. 1432-05

Press release only in English

Office @ 63

Navi Mumbai, India

Sanjay Puri Architects

Mumbai, India, 2019-12-17 - 

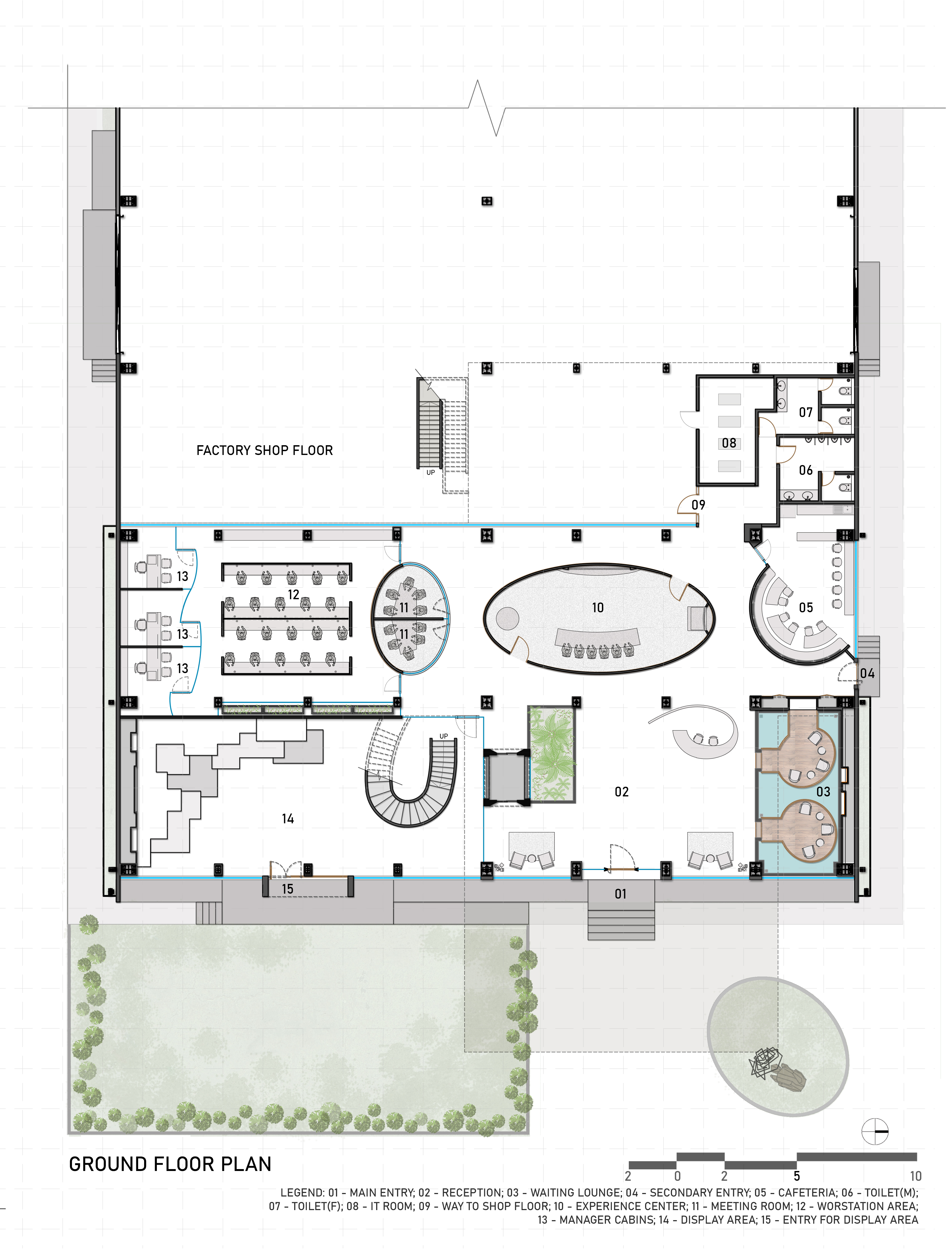
A series of architectural volumes create an office for a furniture contract company within their factory.


Volumes within volumes lend each functional part of the office their own identity. A large reception space is punctuated by a 36’ high seating area in the form of elliptical pods floating in a shallow reflecting pool at one end and a landscaped courtyard at the other end.


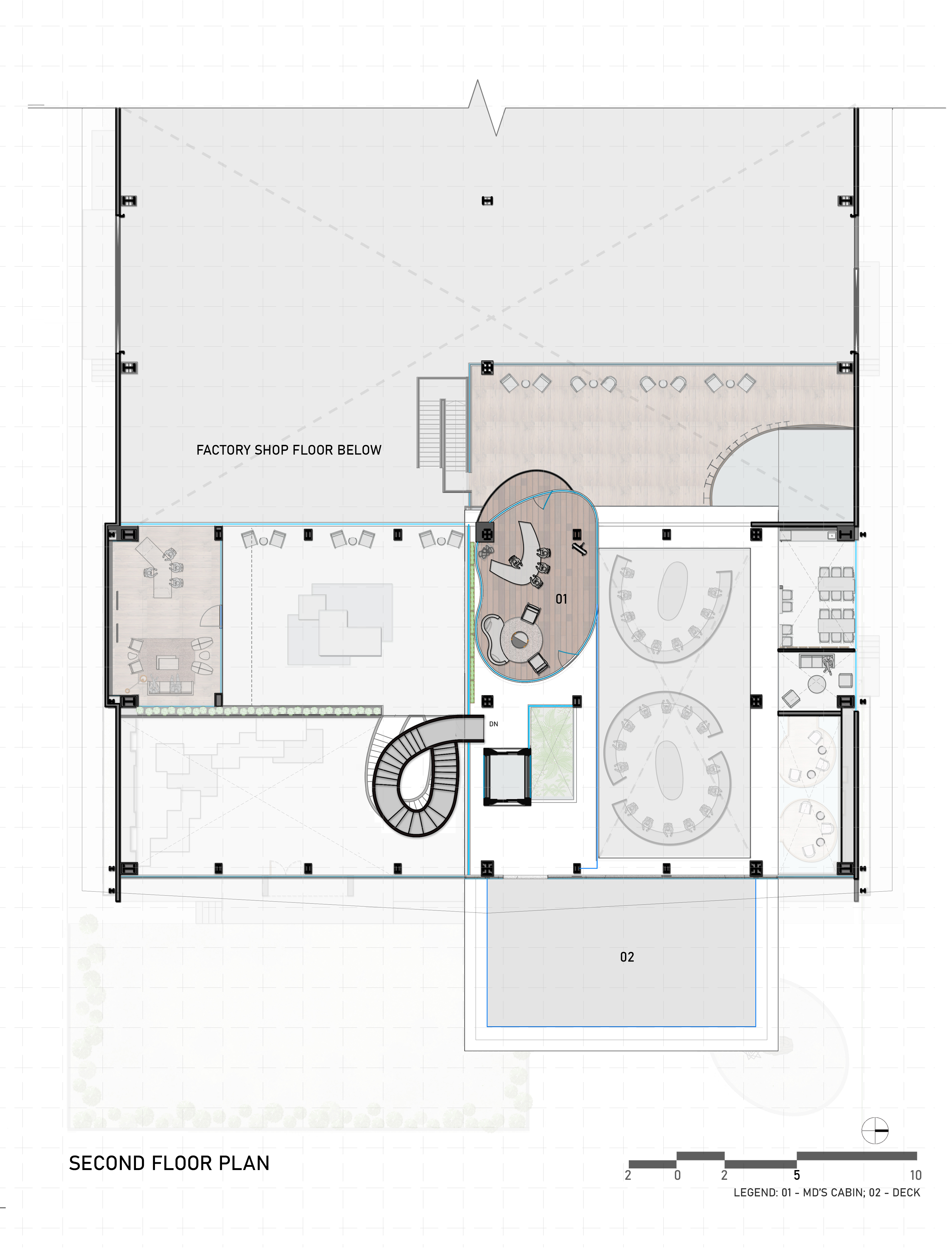
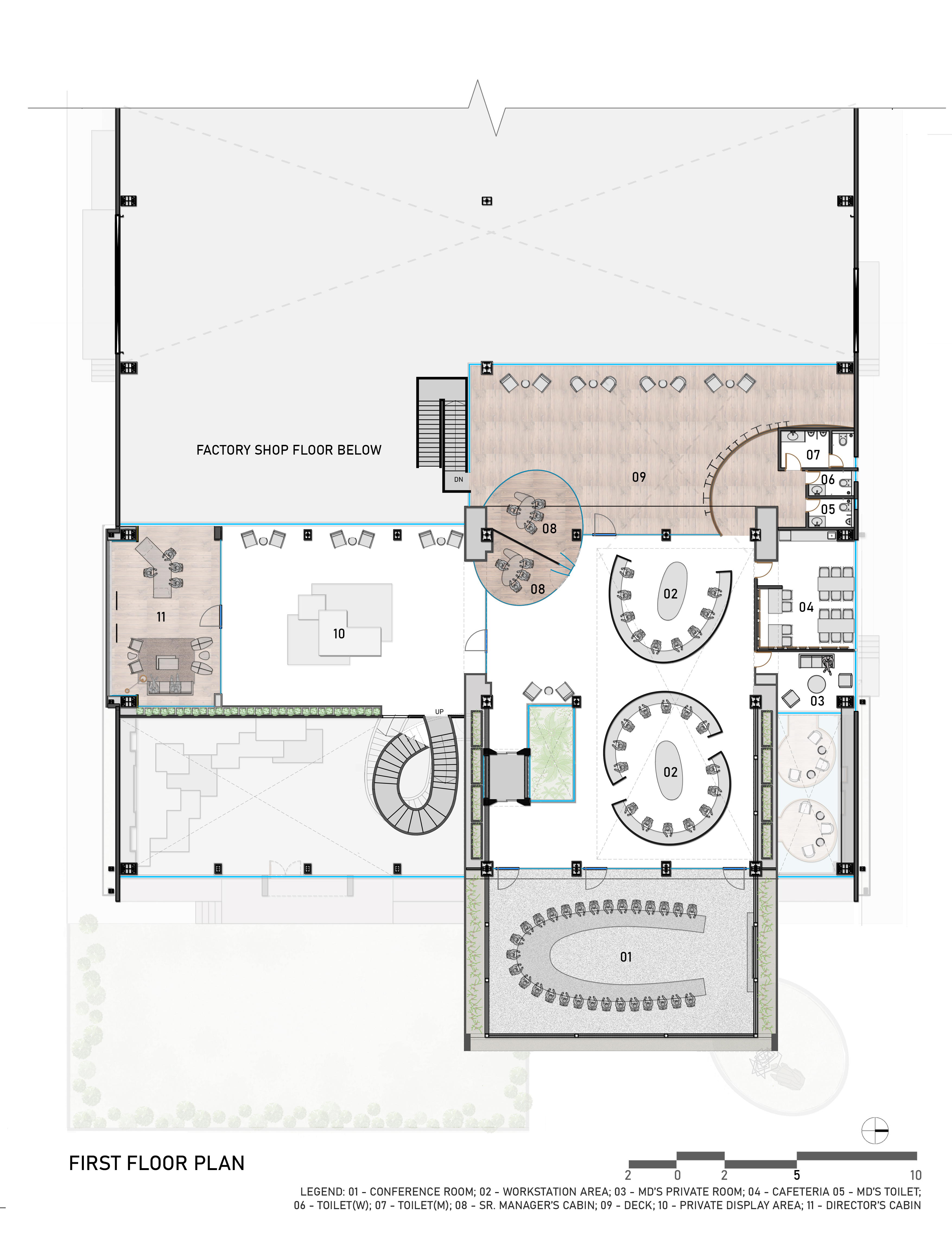
Towards one side, a 36’ high multifunctional space with movable modular platforms is designed to be used as a furniture display space, a seminar hall or a social interaction space. A cantilevered sweeping stairway spirals asymmetrically through this volume connecting the 3 levels of the office.


Each of the spaces within the office is formed by elliptical volumes that create organic circulation spaces between them. A material palette of glass, metallic paint walnut and wood, sound insulation boards, cork and concrete accentuate each area differently.

Lighting is integrated into the design in multiple ways. Perforated partitions of wood fused with Plexiglas, pyramidal modules ceilings, a conference room with an installation of light-infused aluminium pipes.


On each level, large openings allow natural light into the internal spaces from the northern side and unobstructed views of the factory on the southern side.


Exposed ducting & exposed structural steel supports allude to the industrial space of the factory along with the steel finishes for most of the partitions.


Each of the workstation areas, the discussion rooms, the cabins, conference room, multi-functional space & video conferencing room based upon the client’s brief is individual in identity and arranged organically over 3 levels forming an architectural interior with a composition of varying volumes.

 

Technical sheet

CLIENT: Narsi & Associates

AREA: 20,000 sq.ft.

LOCATION: Navi Mumbai, India

PRINCIPAL ARCHITECT: Sanjay Puri

PROJECT ARCHITECT: Ishveen Bhasin, Abhishek Kadian


About Sanjay Puri Architects

Sanjay Puri, alumni of Mayo College, Ajmer and St.Xaviers College, Mumbai graduated from the Academy of Architecture, Mumbai in 1988 and is the principal architect of the firm Sanjay Puri Architects.


With a young team of over 72 architects, the firm has a diverse portfolio of projects including townships, residential developments, software parks, hotels, retail malls, schools, and smaller individual projects.


- 30 -

For more information

  1. www.sanjaypuriarchitects.com

Media contact

Attachments

Ground Floor Plan
First Floor Plan
Second Floor Plan
Section
Concept Model
Low-resolution images ~ 5.97 MB
High-resolution tif images ~ 1.06 GB

Terms and conditions

For immediate release

All photos must be published with proper credit. Please reference v2com as the source whenever possible. We always appreciate receiving PDF copies of your articles.

Press kit | 1432-05 - Press release | Office @ 63 - Sanjay Puri Architects - Commercial Interior Design - 01 Reception - Photo credit: Vinesh Gandhi
01 Reception
Photo credit: Vinesh Gandhi
Download

Very High-resolution image : 24.42 x 16.3 @ 300dpi ~ 25 MB

Press kit | 1432-05 - Press release | Office @ 63 - Sanjay Puri Architects - Commercial Interior Design - 02 Waiting Lounge a - Photo credit: Vinesh Gandhi
02 Waiting Lounge a
Photo credit: Vinesh Gandhi
Download

Very High-resolution image : 16.28 x 24.4 @ 300dpi ~ 19 MB

Press kit | 1432-05 - Press release | Office @ 63 - Sanjay Puri Architects - Commercial Interior Design - 02 Waiting Lounge b - Photo credit: Vinesh Gandhi
02 Waiting Lounge b
Photo credit: Vinesh Gandhi
Download

Very High-resolution image : 16.31 x 24.44 @ 300dpi ~ 18 MB

Press kit | 1432-05 - Press release | Office @ 63 - Sanjay Puri Architects - Commercial Interior Design - 04 Corridor a - Photo credit: Vinesh Gandhi
04 Corridor a
Photo credit: Vinesh Gandhi
Download

Very High-resolution image : 24.42 x 16.3 @ 300dpi ~ 26 MB

Press kit | 1432-05 - Press release | Office @ 63 - Sanjay Puri Architects - Commercial Interior Design - 05 Corridor b - Photo credit: Vinesh Gandhi
05 Corridor b
Photo credit: Vinesh Gandhi
Download

Very High-resolution image : 24.44 x 16.31 @ 300dpi ~ 30 MB

Press kit | 1432-05 - Press release | Office @ 63 - Sanjay Puri Architects - Commercial Interior Design - 06 Ground Floor Meeting Room a - Photo credit: Vinesh Gandhi
06 Ground Floor Meeting Room a
Photo credit: Vinesh Gandhi
Download

Very High-resolution image : 24.25 x 16.32 @ 300dpi ~ 23 MB

Press kit | 1432-05 - Press release | Office @ 63 - Sanjay Puri Architects - Commercial Interior Design - 07 Ground Floor Meeting Room b - Photo credit: Vinesh Gandhi
07 Ground Floor Meeting Room b
Photo credit: Vinesh Gandhi
Download

Very High-resolution image : 24.46 x 16.32 @ 300dpi ~ 24 MB

Press kit | 1432-05 - Press release | Office @ 63 - Sanjay Puri Architects - Commercial Interior Design - 08 Staircase a - Photo credit: Vinesh Gandhi
08 Staircase a
Photo credit: Vinesh Gandhi
Download

Very High-resolution image : 16.03 x 23.8 @ 300dpi ~ 16 MB

Press kit | 1432-05 - Press release | Office @ 63 - Sanjay Puri Architects - Commercial Interior Design - 09 Staircase b - Photo credit: Vinesh Gandhi
09 Staircase b
Photo credit: Vinesh Gandhi
Download

Very High-resolution image : 15.66 x 23.47 @ 300dpi ~ 17 MB

Press kit | 1432-05 - Press release | Office @ 63 - Sanjay Puri Architects - Commercial Interior Design - 10 Display Area a - Photo credit: Vinesh Gandhi
10 Display Area a
Photo credit: Vinesh Gandhi
Download

Very High-resolution image : 15.99 x 23.19 @ 300dpi ~ 17 MB

Press kit | 1432-05 - Press release | Office @ 63 - Sanjay Puri Architects - Commercial Interior Design - 11 Display Area b - Photo credit: Vinesh Gandhi
11 Display Area b
Photo credit: Vinesh Gandhi
Download

Very High-resolution image : 16.25 x 24.17 @ 300dpi ~ 17 MB

Press kit | 1432-05 - Press release | Office @ 63 - Sanjay Puri Architects - Commercial Interior Design - 12 Staircase c - Photo credit: Vinesh Gandhi
12 Staircase c
Photo credit: Vinesh Gandhi
Download

Very High-resolution image : 16.2 x 24.22 @ 300dpi ~ 15 MB

Press kit | 1432-05 - Press release | Office @ 63 - Sanjay Puri Architects - Commercial Interior Design - 13 Staircase d - Photo credit: Vinesh Gandhi
13 Staircase d
Photo credit: Vinesh Gandhi
Download

Very High-resolution image : 16.2 x 24.27 @ 300dpi ~ 15 MB

Press kit | 1432-05 - Press release | Office @ 63 - Sanjay Puri Architects - Commercial Interior Design - 14 First Floor Workstation Area a - Photo credit: Vinesh Gandhi
14 First Floor Workstation Area a
Photo credit: Vinesh Gandhi
Download

Very High-resolution image : 24.44 x 16.31 @ 300dpi ~ 23 MB

Press kit | 1432-05 - Press release | Office @ 63 - Sanjay Puri Architects - Commercial Interior Design - 15 First Floor Workstation Area b - Photo credit: Vinesh Gandhi
15 First Floor Workstation Area b
Photo credit: Vinesh Gandhi
Download

Very High-resolution image : 24.44 x 16.31 @ 300dpi ~ 24 MB

Press kit | 1432-05 - Press release | Office @ 63 - Sanjay Puri Architects - Commercial Interior Design - 16 First Floor - Conference Room - Photo credit: Vinesh Gandhi
16 First Floor - Conference Room
Photo credit: Vinesh Gandhi
Download

Very High-resolution image : 23.85 x 16.26 @ 300dpi ~ 22 MB

Press kit | 1432-05 - Press release | Office @ 63 - Sanjay Puri Architects - Commercial Interior Design - 17 First Floor - Manager's Cabin - Photo credit: Vinesh Gandhi
17 First Floor - Manager's Cabin
Photo credit: Vinesh Gandhi
Download

Very High-resolution image : 24.44 x 16.31 @ 300dpi ~ 23 MB

Press kit | 1432-05 - Press release | Office @ 63 - Sanjay Puri Architects - Commercial Interior Design - 18 First Floor - Director's Cabin - Photo credit: Vinesh Gandhi
18 First Floor - Director's Cabin
Photo credit: Vinesh Gandhi
Download

Very High-resolution image : 24.33 x 16.3 @ 300dpi ~ 26 MB

You may also like...

Same company
Newsroom | v2com-newswire | Newswire | Architecture | Design | Lifestyle - Press release - Magnus - Sanjay Puri Architects

Mumbai, India, 2026-03-09

Magnus

Sanjay Puri Architects

Same company
Newsroom | v2com-newswire | Newswire | Architecture | Design | Lifestyle - Press release - CREST NINE - Sanjay Puri Architects

Mumbai, India, 2026-03-05

CREST NINE

Sanjay Puri Architects

Same company
Newsroom | v2com-newswire | Newswire | Architecture | Design | Lifestyle - Press release - Prestige University - Sanjay Puri Architects
Same company
Newsroom | v2com-newswire | Newswire | Architecture | Design | Lifestyle - Press release - Stella - Sanjay Puri Architects

Mumbai, India, 2026-02-13

Stella

Sanjay Puri Architects

Same company
Newsroom | v2com-newswire | Newswire | Architecture | Design | Lifestyle - Press release - Cielo - Sanjay Puri Architects

Mumbai, India, 2026-02-02

Cielo

Sanjay Puri Architects

Same company
Newsroom | v2com-newswire | Newswire | Architecture | Design | Lifestyle - Press release - Stylera - Sanjay Puri Architects

Mumbai, India, 2025-07-28

Stylera

Sanjay Puri Architects

Same company
Newsroom | v2com-newswire | Newswire | Architecture | Design | Lifestyle - Press release - Corallite - Sanjay Puri Architects

Mumbai, India, 2025-03-31

Corallite

Sanjay Puri Architects

Same company
Newsroom | v2com-newswire | Newswire | Architecture | Design | Lifestyle - Press release - Screen 504 - Sanjay Puri Architects

Mumbai, India, 2025-03-03

Screen 504

Sanjay Puri Architects

Same company
Newsroom | v2com-newswire | Newswire | Architecture | Design | Lifestyle - Press release - Nine X Nine - Sanjay Puri Architects

Mumbai, India, 2025-02-27

Nine X Nine

Sanjay Puri Architects

Same company
Newsroom | v2com-newswire | Newswire | Architecture | Design | Lifestyle - Press release - NEZO - Sanjay Puri Architects

Mumbai, India, 2024-10-24

NEZO

Sanjay Puri Architects

Same company
Newsroom | v2com-newswire | Newswire | Architecture | Design | Lifestyle - Press release - Aatma Manthan Museum - Sanjay Puri Architects
Same company
Newsroom | v2com-newswire | Newswire | Architecture | Design | Lifestyle - Press release - OFFICE@27 - Sanjay Puri Architects

Mumbai, India, 2024-06-14

OFFICE@27

Sanjay Puri Architects

Same company
Newsroom | v2com-newswire | Newswire | Architecture | Design | Lifestyle - Press release - Narsighar - Sanjay Puri Architects

Mumbai, India, 2024-05-30

Narsighar

Sanjay Puri Architects

Same company
Newsroom | v2com-newswire | Newswire | Architecture | Design | Lifestyle - Press release - The Forest - Sanjay Puri Architects

Mumbai, India, 2024-01-30

The Forest

Sanjay Puri Architects

Same company
Newsroom | v2com-newswire | Newswire | Architecture | Design | Lifestyle - Press release - Zen Spaces - Sanjay Puri Architects

Mumbai, India, 2023-11-17

Zen Spaces

Sanjay Puri Architects

Same company
Newsroom | v2com-newswire | Newswire | Architecture | Design | Lifestyle - Press release - Interstellar - Sanjay Puri Architects

Mumbai, India, 2023-02-27

Interstellar

Sanjay Puri Architects

Same company
Newsroom | v2com-newswire | Newswire | Architecture | Design | Lifestyle - Press release - Mirai House of Arches - Sanjay Puri Architects
Same company
Newsroom | v2com-newswire | Newswire | Architecture | Design | Lifestyle - Press release - Shree Town - Sanjay Puri Architects

Mumbai, India, 2022-05-25

Shree Town

Sanjay Puri Architects

Same company
Newsroom | v2com-newswire | Newswire | Architecture | Design | Lifestyle - Press release - The Courtyard Office - Sanjay Puri Architects
Same company
Newsroom | v2com-newswire | Newswire | Architecture | Design | Lifestyle - Press release - Studios 90 - Sanjay Puri Architects

Mumbai, India, 2022-03-14

Studios 90

Sanjay Puri Architects

Same company
Newsroom | v2com-newswire | Newswire | Architecture | Design | Lifestyle - Press release - Prestige University - Sanjay Puri Architects
Same company
Newsroom | v2com-newswire | Newswire | Architecture | Design | Lifestyle - Press release - Akshaya 27 - Sanjay Puri Architects

Mumbai, India, 2020-09-10

Akshaya 27

Sanjay Puri Architects

Same company
Newsroom | v2com-newswire | Newswire | Architecture | Design | Lifestyle - Press release - EXCELLENSEAA 126 by Happy Homes - Sanjay Puri Architects
Same company
Newsroom | v2com-newswire | Newswire | Architecture | Design | Lifestyle - Press release - Aria Hotel - Sanjay Puri Architects

Mumbai, India, 2020-03-23

Aria Hotel

Sanjay Puri Architects

Same company
Newsroom | v2com-newswire | Newswire | Architecture | Design | Lifestyle - Press release - The Rajasthan School - Sanjay Puri Architects

Mumbai, India, 2020-03-17

The Rajasthan School

Sanjay Puri Architects

Same company
Newsroom | v2com-newswire | Newswire | Architecture | Design | Lifestyle - Press release - Stellar - Sanjay Puri Architects

Mumbai, India, 2020-01-14

Stellar

Sanjay Puri Architects

Same company
Newsroom | v2com-newswire | Newswire | Architecture | Design | Lifestyle - Press release - 18 Screens - Sanjay Puri Architects

Mumbai, India, 2019-09-24

18 Screens

Sanjay Puri Architects

Same company
Newsroom | v2com-newswire | Newswire | Architecture | Design | Lifestyle - Press release - The Street - Sanjay Puri Architects

Mumbai, India, 2017-11-15

The Street 

Sanjay Puri Architects

Same company
Newsroom | v2com-newswire | Newswire | Architecture | Design | Lifestyle - Press release - Studios 18 - Sanjay Puri Architects
Newsroom | v2com-newswire | Newswire | Architecture | Design | Lifestyle - Press release - A Staircase as Architectural Invitation - EeStairs

Barneveld, Netherlands, 2026-02-24

A Staircase as Architectural Invitation

EeStairs

Newsroom | v2com-newswire | Newswire | Architecture | Design | Lifestyle - Press release - Olia & Mimi - Ste Marie

Vancouver, Canada, 2026-02-09

Olia & Mimi

Ste Marie

Newsroom | v2com-newswire | Newswire | Architecture | Design | Lifestyle - Press release - Sigma Space - ONOAA STUDIO

Shanghai, China, 2026-02-02

Sigma Space

ONOAA STUDIO

Newsroom | v2com-newswire | Newswire | Architecture | Design | Lifestyle - Press release - SYMBOLPLUS OFFICE - SYMBOLPLUS INC.

Tokyo, Japan, 2026-01-16

SYMBOLPLUS OFFICE

SYMBOLPLUS INC.

Newsroom | v2com-newswire | Newswire | Architecture | Design | Lifestyle - Press release - Picturesque Hotel in France - Marianne Tiegen Interiors

Miami, United States, 2025-12-18

Picturesque Hotel in France

Marianne Tiegen Interiors