Press kit no. 3491-01

Journalists, explore this publication-ready project. Create a free v2com media account to download high-resolution images.

Create a media account
Press kit - Press release - Harty House - Atelier SUN

Press Kit | no. 3491-01

Press release only in English

Harty House

Ajax, Canada

Atelier SUN

Toronto, Canada, 2023-02-13 - 

Harty House, a suburban oasis, is a residential renovation project designed by Toronto-based design firm Atelier SUN. The design overcomes the challenge of converting a cookie-cutter builder home into a minimal and tranquil living space.


Located in Ajax, a city on the east border of Toronto, the house was built in the 1980s under the mass-produced development madness with excessive structural elements such as columns and beams in the space.


“It is such a challenging site. We were surprised to see seven columns floating in the middle of the ground floor within an 850-square-foot floor area. We had to incorporate the structural elements into the function and aesthetic of the design by minimizing the visual clutter of the existing condition and effectively creating a minimal and comfortable living experience,” Andrew Sun noted.


The foyer has a welcoming nook wrapped in wood panels, integrating bench seating, a shoe rack, and a closet, creating a cozy atmosphere at the entrance of the house. Adjacent to the foyer, a floating staircase becomes the extension of the millwork. A wood panel stair wall not only acts as a privacy panel that marries the structural support of the stair, but also becomes the canvas that captures the beautiful shadow casting off the steps.


In the living area, a central beam and column are wrapped by wood finishes, with bronze-coloured accent details at the top and bottom. This acts as a sculptural piece that frees most of the original load-bearing walls in the space. The living room and workspace are on one side of the open floor plan and are designed with wooden millwork, which integrates storage, display, and flip-down tables. The kitchen and dining areas wrapped with wood panels are located on the other side. Wooden pocket doors lead to the hidden pantry, a dog shower, and a separate entrance to the garage.


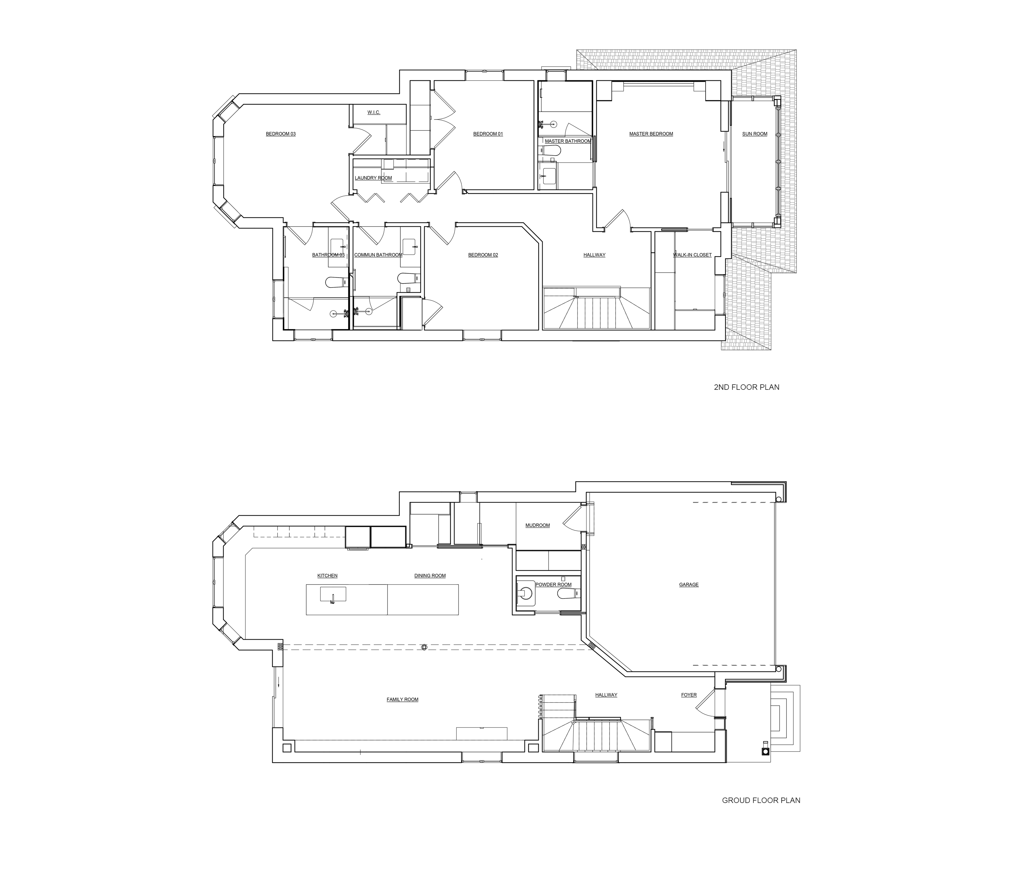
With a four-bedroom and three-bathroom configuration on the 2nd floor, the design is still able to capture the hospitable atmosphere in the space.


The emphasis on natural material, delicate details, and intricate craftsmanship throughout the entire space reconnects the owner to a calming and peaceful lifestyle.

Technical sheet

Project Name: Harty House

Location: Ajax, Ontario, Canada

Architect / Designer: Atelier Sun

Team: Andrew Sun, Cherie Yang, Nassila Oudahmane, Jacqueline Horne 

Millworker: Gold Palace Woodworking

Stairs: D2 Woodworking

Contractor: Amazi Image

Completion date: August 2022

Photos: Joel Esposito

Area: 1700 sq. ft.

About Atelier SUN

Located in Toronto, Canada, Atelier SUN is a multi-disciplinary design studio founded by Andrew Sun in 2019 to focuses on interior architecture and interior design. Every project aims to discover the essential meaning of the space that has a strong connection to the local culture, functionality, and aesthetics.


With a strong focus on experience, functionality, and aesthetics, Andrew has 15 years of experience working on various range projects for hospitality, retail, and residential clients. As an Architectural and Interior designer, Andrew is driven by concept, spatial sequence, material, and aesthetics.


Accolades include a prestigious ARIDO 2015 merit award, as well as recognition as 2016 Best of Canada in residential by Canadian interior magazine. Atelier SUN has also been recognized as a Top 30 Emerging Interior Design firm by Azure Magazine for Canada 150.


Andrew graduated from Ontario College of Art and Design in 2008 and is a registered interior designer with the Association of Registered Interior Design.

- 30 -

For more information

  1. www.ateliersun.com

Media contact

Attachments

Floor plan
Low-resolution images ~ 3.24 MB
High-resolution tif images ~ 841 MB
High-resolution jpg images ~ 112 MB

Terms and conditions

For immediate release

All photos must be published with proper credit. Please reference v2com as the source whenever possible. We always appreciate receiving PDF copies of your articles.

Press kit | 3491-01 - Press release | Harty House - Atelier SUN - Residential Interior Design - Living, Kitchen and Dining - Photo credit: Joel Esposito
Living, Kitchen and Dining
Photo credit: Joel Esposito
Download

Very High-resolution image : 25.81 x 19.36 @ 300dpi ~ 17 MB

Press kit | 3491-01 - Press release | Harty House - Atelier SUN - Residential Interior Design - Living room - Photo credit: Joel Esposito
Living room
Photo credit: Joel Esposito
Download

Very High-resolution image : 26.59 x 19.95 @ 300dpi ~ 21 MB

Press kit | 3491-01 - Press release | Harty House - Atelier SUN - Residential Interior Design - Living room - Photo credit: Joel Esposito
Living room
Photo credit: Joel Esposito
Download

High-resolution image : 10.0 x 13.33 @ 300dpi ~ 6.9 MB

Press kit | 3491-01 - Press release | Harty House - Atelier SUN - Residential Interior Design - Living room - Photo credit: Joel Esposito
Living room
Photo credit: Joel Esposito
Download

Very High-resolution image : 26.96 x 20.22 @ 300dpi ~ 19 MB

Press kit | 3491-01 - Press release | Harty House - Atelier SUN - Residential Interior Design - Living room, Dining - Photo credit: Joel Esposito
Living room, Dining
Photo credit: Joel Esposito
Download

High-resolution image : 10.0 x 13.33 @ 300dpi ~ 5.8 MB

Press kit | 3491-01 - Press release | Harty House - Atelier SUN - Residential Interior Design - Kitchen, Dining - Photo credit: Joel Esposito
Kitchen, Dining
Photo credit: Joel Esposito
Download

Very High-resolution image : 27.52 x 20.64 @ 300dpi ~ 30 MB

Press kit | 3491-01 - Press release | Harty House - Atelier SUN - Residential Interior Design - Dining - Photo credit: Joel Esposito
Dining
Photo credit: Joel Esposito
Download

Very High-resolution image : 20.64 x 27.52 @ 300dpi ~ 35 MB

Press kit | 3491-01 - Press release | Harty House - Atelier SUN - Residential Interior Design - Kitchen, Dining - Photo credit: Joel Esposito
Kitchen, Dining
Photo credit: Joel Esposito
Download

Very High-resolution image : 20.64 x 27.52 @ 300dpi ~ 23 MB

Press kit | 3491-01 - Press release | Harty House - Atelier SUN - Residential Interior Design - Stairs - Photo credit: Joel Esposito
Stairs
Photo credit: Joel Esposito
Download

Very High-resolution image : 19.68 x 26.24 @ 300dpi ~ 22 MB

Press kit | 3491-01 - Press release | Harty House - Atelier SUN - Residential Interior Design - Stairs, Foyer - Photo credit: Joel Esposito
Stairs, Foyer
Photo credit: Joel Esposito
Download

Very High-resolution image : 18.57 x 24.14 @ 300dpi ~ 17 MB

Press kit | 3491-01 - Press release | Harty House - Atelier SUN - Residential Interior Design - Stairs - Photo credit: Joel Esposito
Stairs
Photo credit: Joel Esposito
Download

Very High-resolution image : 19.33 x 25.77 @ 300dpi ~ 22 MB

Press kit | 3491-01 - Press release | Harty House - Atelier SUN - Residential Interior Design - Master Bedroom - Photo credit: Joel Esposito
Master Bedroom
Photo credit: Joel Esposito
Download

Very High-resolution image : 20.13 x 26.83 @ 300dpi ~ 24 MB

Press kit | 3491-01 - Press release | Harty House - Atelier SUN - Residential Interior Design - Master Bedroom - Photo credit: Joel Esposito
Master Bedroom
Photo credit: Joel Esposito
Download

Very High-resolution image : 26.78 x 20.09 @ 300dpi ~ 21 MB

Press kit | 3491-01 - Press release | Harty House - Atelier SUN - Residential Interior Design - Floor Plan - Photo credit: N/A
Floor Plan
Photo credit: N/A
Download

High-resolution image : 11.16 x 9.6 @ 300dpi ~ 500 KB

You may also like...