Press kit no. 2682-02

Journalists, explore this publication-ready project. Create a free v2com media account to download high-resolution images.

Create a media account
Press kit - Press release - House of Monitors - Williamson Williamson Inc.

Press Kit | no. 2682-02

House of Monitors

Scarborough, Canada

Williamson Williamson Inc.

Toronto, Canada, 2026-01-09 - 

The House of Monitors is a home that captures and choreographs light while highlighting the materials of production. Developed in close collaboration with the owners, the Resident Scenic Artist for the National Ballet of Canada, and a shoring engineer with expertise in complex ground conditions, the project designed opportunities to engage materials through framed views, sectional cuts, and layered spatial connections that support understanding of the building’s construction. Carving light through the structure is not only a daylighting strategy, but a way to intertwine interior and exterior, revealing the house as a calibrated sequence of volumes, textures, and luminous atmospheres.


From the sandy soils of the bluff, concrete volumes emerge as inhabitable shoring, forming the structural and spatial framework of the house, while responding directly to unstable soil conditions and minimizing disturbance to the escarpment. Above, a wood volume is cantilevered toward both the street and the lake. Intersections and subtractions between these elements generate sectional depth, cross-views, and a calibrated distribution of light. A centrally located painting studio was developed collaboratively with the owner through iterative studies and virtual light simulations, resulting in a north-facing clerestory and a radiused ceiling that produces even, controlled daylight.


The Scarborough Bluffs lie along Toronto’s East End, where erosion once retreated the land by a metre/year. In the 1960s, conservation efforts planted the bluff to stabilize erosion and protect suburban development that had advanced to the edge. What appears natural today is largely artificially constructed. This condition forms the context for the House of Monitors: a 300-foot-high engineered escarpment supporting a narrow sliver of tableland on a suburban street. In response, the project adopts a restrained footprint and carefully positioned massing to respect neighbouring houses and the fragile edge condition, prioritizing long-term stability, discretion, and stewardship over visual prominence.


Entry occurs beneath the front cantilever through a reeded glass door, providing essential daylight while maintaining privacy along the closely spaced street edge. Concrete forms the service core of the house, anchoring it to the bluff and performing simultaneously as structure, shoring, and thermal mass. Circulation and primary rooms are lined with wood millwork, establishing a tactile counterpoint to the raw structure. Above, white painted light monitors amplify daylight deep into the plan, reducing reliance on artificial lighting. The elemental palette prioritizes durability, repairability, and long-term material performance.


From the street, storage and pantry form a protective service layer supporting efficient organization. Flanking the stair, dining, kitchen, and living open to the lake. Centrally, a 26-foot-tall light monitor creates a vertical volume defined by daylight rather than enclosure, achieving spatial generosity without increasing floor area. Above, bedrooms, office, and a living space open to one another, to spaces above and below, and to the exterior, sharing light and views. The primary bedroom and deck face the lake, while secondary rooms are screened from the street by a slatted façade, allowing spaces to adjust to changing privacy and use.


As a private residence on a sensitive site, the project establishes a model for architectural excellence grounded in restraint, durability, and clarity. It demonstrates how ambition, environmental responsibility, and site stewardship can coexist through careful design.

Total Floor Area:
4175 sf


Design Team:
Betsy Williamson, OAA Partner

Shane Williamson, Partner
Sonia Ramundi


Structural Engineering: Blackwell Engineering
Construction Management: Ripple Projects

Millwork: BL Woodworking & Design

Wood Ceilings and Exterior Siding: Woodbecker

Windows: Torp

Lighting: Vintage by owner, Lightline, WAC Lighting, Titanium Technologie

Exterior Siding: TanTimber

Stair: Berman Stairs

Tile: Inax

Roofing and Barriers: Soprema

Appliances: Jenn-Air, Whirlpool

Bathtub: Kohler

Paint: Benjamin Moore

Kitchen Counter: Caesarstone

Wood Flooring: Moncer

 

About Williamson Williamson (WWInc.)

Williamson Williamson (WWInc.) is an award-winning, internationally recognized architecture practice founded by Betsy and Shane Williamson in Toronto. The practice is centered on residential and private institutional projects, with a carefully curated body of commercial work, exhibitions, furniture, and speculative projects. The work is defined by precision, craft, and design excellence at every scale and budget, valuing close collaboration with clients, consultants, and builders.


Multi-generational housing has become a central focus of the practice, responding to both affordability pressures in Toronto’s urban core, and evolving models of family life. Their houses are designed to be readily adaptable, supporting multiple and changing living arrangements while engaging the latent potential for gentle intensification embedded in the city’s fabric. In parallel, they have begun working with affordable housing partners to extend these principles of flexibility, density, and social responsibility beyond the single-family house.


The partners have strong ties to both professional practice and academia. Betsy is Vice Chair of the Waterfront Design Review Panel and co-founder of Building Equality in Architecture (BEA). Shane is a tenured Associate Professor and former Director of the Master of Architecture program at the University of Toronto’s Daniels Faculty. Both are Fellows of the Royal Architectural Institute of Canada.


WWInc.’s work has been widely published and exhibited internationally. Recent recognition includes a Governor General’s Medal for the Garden Laneway House, along with numerous awards from the OAA, RAIC, Canadian Architect, Architect Magazine, and others, including the Professional Prix de Rome for Architecture and the Emerging Voices Award from the Architectural League of New York.

- 30 -

For more information

  1. www.williamsonwilliamson.com/arch/pro...

Media contact

Attachments

Low-resolution images ~ 3.55 MB
High-resolution tif images ~ 624 MB
High-resolution jpg images ~ 49.5 MB

Terms and conditions

For immediate release

All photos must be published with proper credit. Please reference v2com as the source whenever possible. We always appreciate receiving PDF copies of your articles.

Press kit | 2682-02 - Press release | House of Monitors - Williamson Williamson Inc. - Residential Architecture - Looking into the dining room below from the bridge to the primary bedroom. - Photo credit: Doublespace Photography
Looking into the dining room below from the bridge to the primary bedroom.
Photo credit: Doublespace Photography
Download

Very High-resolution image : 21.67 x 16.25 @ 300dpi ~ 6.4 MB

Press kit | 2682-02 - Press release | House of Monitors - Williamson Williamson Inc. - Residential Architecture - <p class="">The property sliver extends from the tableland, down the bluff, to Lake Ontario. </p> - Photo credit: WWInc.

The property sliver extends from the tableland, down the bluff, to Lake Ontario.

Photo credit: WWInc.
Download

Medium-resolution image : 6.67 x 3.75 @ 300dpi ~ 460 KB

Press kit | 2682-02 - Press release | House of Monitors - Williamson Williamson Inc. - Residential Architecture - <p class="">Dotted lines show the extent of the site down to the water. The Toronto Conservation Authority allows building on a small area at the top of the bluff.</p> - Photo credit: WWInc.

Dotted lines show the extent of the site down to the water. The Toronto Conservation Authority allows building on a small area at the top of the bluff.

Photo credit: WWInc.
Download

Low-resolution image : 2.64 x 4.08 @ 300dpi ~ 620 KB

Press kit | 2682-02 - Press release | House of Monitors - Williamson Williamson Inc. - Residential Architecture - Movable slatted screens facing the street allow views out while preventing sightlines into the house. The light monitors create double and triple height spaces on the interior.  - Photo credit: Doublespace Photography
Movable slatted screens facing the street allow views out while preventing sightlines into the house. The light monitors create double and triple height spaces on the interior.
Photo credit: Doublespace Photography
Download

High-resolution image : 13.71 x 10.32 @ 300dpi ~ 8.6 MB

Press kit | 2682-02 - Press release | House of Monitors - Williamson Williamson Inc. - Residential Architecture - <p class="">Looking back at the entry, the stair volume creates a gap between the bridge and the painting studio.</p> - Photo credit: Doublespace Photography

Looking back at the entry, the stair volume creates a gap between the bridge and the painting studio.

Photo credit: Doublespace Photography
Download

Very High-resolution image : 15.0 x 20.0 @ 300dpi ~ 16 MB

Press kit | 2682-02 - Press release | House of Monitors - Williamson Williamson Inc. - Residential Architecture - The small washroom near the entry with a custom stone vanity and sink. - Photo credit: Doublespace Photography
The small washroom near the entry with a custom stone vanity and sink.
Photo credit: Doublespace Photography
Download

Very High-resolution image : 16.25 x 21.67 @ 300dpi ~ 7.4 MB

Press kit | 2682-02 - Press release | House of Monitors - Williamson Williamson Inc. - Residential Architecture - The Douglas Fir ceiling connects the living room and kitchen with oak millwork set into the concrete framework. - Photo credit: Doublespace Photography
The Douglas Fir ceiling connects the living room and kitchen with oak millwork set into the concrete framework.
Photo credit: Doublespace Photography
Download

High-resolution image : 15.0 x 11.25 @ 300dpi ~ 11 MB

Press kit | 2682-02 - Press release | House of Monitors - Williamson Williamson Inc. - Residential Architecture - The owner in the living room at the custom record storage unit.  - Photo credit: Doublespace Photography
The owner in the living room at the custom record storage unit.
Photo credit: Doublespace Photography
Download

Very High-resolution image : 16.27 x 21.67 @ 300dpi ~ 12 MB

Press kit | 2682-02 - Press release | House of Monitors - Williamson Williamson Inc. - Residential Architecture - The west wall of the living room has millwork cabinets and a window aligning with the acoustic living room ceiling.  - Photo credit: Doublespace Photography
The west wall of the living room has millwork cabinets and a window aligning with the acoustic living room ceiling.
Photo credit: Doublespace Photography
Download

Very High-resolution image : 20.0 x 15.0 @ 300dpi ~ 15 MB

Press kit | 2682-02 - Press release | House of Monitors - Williamson Williamson Inc. - Residential Architecture - The dining room has a soaring 26' tall ceiling with a south facing light monitor. - Photo credit: Doublespace Photography
The dining room has a soaring 26' tall ceiling with a south facing light monitor.
Photo credit: Doublespace Photography
Download

High-resolution image : 11.25 x 15.0 @ 300dpi ~ 8.3 MB

Press kit | 2682-02 - Press release | House of Monitors - Williamson Williamson Inc. - Residential Architecture - Looking south from the kitchen under the cantilever deck above, you glimpse the primary bedroom above.  - Photo credit: Doublespace Photography
Looking south from the kitchen under the cantilever deck above, you glimpse the primary bedroom above.
Photo credit: Doublespace Photography
Download

Very High-resolution image : 16.25 x 21.67 @ 300dpi ~ 13 MB

Press kit | 2682-02 - Press release | House of Monitors - Williamson Williamson Inc. - Residential Architecture - Floor Plans - Photo credit: WWInc.
Floor Plans
Photo credit: WWInc.
Download

High-resolution image : 11.33 x 6.38 @ 300dpi ~ 1.2 MB

Press kit | 2682-02 - Press release | House of Monitors - Williamson Williamson Inc. - Residential Architecture - On the second floor looking back at the north street elevation, one of the owner’s paintings of the bluffs reminds us of what is behind us at the edge of the lake. - Photo credit: Doublespace Photography
On the second floor looking back at the north street elevation, one of the owner’s paintings of the bluffs reminds us of what is behind us at the edge of the lake.
Photo credit: Doublespace Photography
Download

Very High-resolution image : 21.67 x 16.25 @ 300dpi ~ 6.3 MB

Press kit | 2682-02 - Press release | House of Monitors - Williamson Williamson Inc. - Residential Architecture - A view from the Primary Bedroom to Lake Ontario. - Photo credit: Doublespace Photography
A view from the Primary Bedroom to Lake Ontario.
Photo credit: Doublespace Photography
Download

High-resolution image : 12.8 x 16.0 @ 300dpi ~ 11 MB

Press kit | 2682-02 - Press release | House of Monitors - Williamson Williamson Inc. - Residential Architecture - A guest bathroom is lined with forest green Japanese tile. - Photo credit: Doublespace Photography
A guest bathroom is lined with forest green Japanese tile.
Photo credit: Doublespace Photography
Download

Very High-resolution image : 16.25 x 21.67 @ 300dpi ~ 12 MB

Press kit | 2682-02 - Press release | House of Monitors - Williamson Williamson Inc. - Residential Architecture - The dining room volume shows the light monitor in white and the central circulation lined in wood.  - Photo credit: Doublespace Photography
The dining room volume shows the light monitor in white and the central circulation lined in wood.
Photo credit: Doublespace Photography
Download

Very High-resolution image : 16.25 x 21.67 @ 300dpi ~ 11 MB

Press kit | 2682-02 - Press release | House of Monitors - Williamson Williamson Inc. - Residential Architecture - The owner working in her painting studio with operable north facing clerestory. - Photo credit: Doublespace Photography
The owner working in her painting studio with operable north facing clerestory.
Photo credit: Doublespace Photography
Download

Very High-resolution image : 21.67 x 15.01 @ 300dpi ~ 8.2 MB

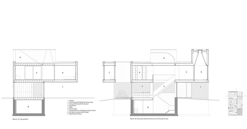
Press kit | 2682-02 - Press release | House of Monitors - Williamson Williamson Inc. - Residential Architecture - Building sections showing the light monitors and cantilevers. - Photo credit: WWInc.
Building sections showing the light monitors and cantilevers.
Photo credit: WWInc.
Download

Very High-resolution image : 27.25 x 14.24 @ 300dpi ~ 4.6 MB

Press kit | 2682-02 - Press release | House of Monitors - Williamson Williamson Inc. - Residential Architecture - A detail view of the front facade. - Photo credit: Doublespace Photography
A detail view of the front facade.
Photo credit: Doublespace Photography
Download

Medium-resolution image : 6.79 x 8.94 @ 300dpi ~ 1.4 MB

Press kit | 2682-02 - Press release | House of Monitors - Williamson Williamson Inc. - Residential Architecture - <p class="">A small guest room with a sitting area is captured under a pyramidal ceiling.</p> - Photo credit: Doublespace Photography

A small guest room with a sitting area is captured under a pyramidal ceiling.

Photo credit: Doublespace Photography
Download

Very High-resolution image : 16.25 x 21.67 @ 300dpi ~ 8.8 MB

Press kit | 2682-02 - Press release | House of Monitors - Williamson Williamson Inc. - Residential Architecture - Looking up from the impluvium past the second floor deck. - Photo credit: Doublespace Photography
Looking up from the impluvium past the second floor deck.
Photo credit: Doublespace Photography
Download

Very High-resolution image : 21.67 x 16.25 @ 300dpi ~ 9.8 MB

Press kit | 2682-02 - Press release | House of Monitors - Williamson Williamson Inc. - Residential Architecture - Looking back at the house from the rear deck, subtractions from the wood volume create a layering of interior and exterior spaces - Photo credit: Doublespace Photography
Looking back at the house from the rear deck, subtractions from the wood volume create a layering of interior and exterior spaces
Photo credit: Doublespace Photography
Download

Very High-resolution image : 16.25 x 21.67 @ 300dpi ~ 13 MB

Press kit | 2682-02 - Press release | House of Monitors - Williamson Williamson Inc. - Residential Architecture - The exterior second-floor deck is open to below and above and shares the sky space with a sitting area in the primary bedroom. - Photo credit: Doublespace Photography
The exterior second-floor deck is open to below and above and shares the sky space with a sitting area in the primary bedroom.
Photo credit: Doublespace Photography
Download

Very High-resolution image : 21.67 x 18.02 @ 300dpi ~ 16 MB

Press kit | 2682-02 - Press release | House of Monitors - Williamson Williamson Inc. - Residential Architecture - The south elevation faces Lake Ontario with open views and shaded decks. - Photo credit: Doublespace Photography
The south elevation faces Lake Ontario with open views and shaded decks.
Photo credit: Doublespace Photography
Download

Very High-resolution image : 21.67 x 16.25 @ 300dpi ~ 18 MB

Press kit | 2682-02 - Press release | House of Monitors - Williamson Williamson Inc. - Residential Architecture - <p class="">The second-floor deck has both covered and open spaces, and a view of Lake Ontario.</p> - Photo credit: Doublespace Photography

The second-floor deck has both covered and open spaces, and a view of Lake Ontario.

Photo credit: Doublespace Photography
Download

High-resolution image : 13.0 x 9.75 @ 300dpi ~ 12 MB

You may also like...

Newsroom | v2com-newswire | Newswire | Architecture | Design | Lifestyle - Press release - Rue Bouret, Paris - PietriArchitectes

Paris, France, 2026-01-28

Rue Bouret, Paris

PietriArchitectes

Newsroom | v2com-newswire | Newswire | Architecture | Design | Lifestyle - Press release - Franky - Quinzhee Architecture

Québec City, Canada, 2026-01-27

Franky

Quinzhee Architecture

Newsroom | v2com-newswire | Newswire | Architecture | Design | Lifestyle - Press release - House 720 Degrees - Fernanda Canales

Mexico City, Mexico, 2026-01-20

House 720 Degrees

Fernanda Canales

Newsroom | v2com-newswire | Newswire | Architecture | Design | Lifestyle - Press release - ShoeBox CHB - ALEXANDRE BERNIER ARCHITECTE

Montreal, Canada, 2026-01-16

ShoeBox CHB

ALEXANDRE BERNIER ARCHITECTE

Newsroom | v2com-newswire | Newswire | Architecture | Design | Lifestyle - Press release - Ridge House - Superkül

Toronto, Canada, 2026-01-16

Ridge House

Superkül

Newsroom | v2com-newswire | Newswire | Architecture | Design | Lifestyle - Press release - Republica - Marc Koehler Associates

Amsterdam, Netherlands, 2026-01-09

Republica

Marc Koehler Associates

Newsroom | v2com-newswire | Newswire | Architecture | Design | Lifestyle - Press release - The Perigon - OMA / Jason Long

New York, United States, 2026-01-06

The Perigon

OMA / Jason Long