Press kit no. 7640-02

Journalists, explore this publication-ready project. Create a free v2com media account to download high-resolution images.

Create a media account
Press kit - Press release - Music Classrooms at The Western Academy of Beijing - studio vapore

Press Kit | no. 7640-02

Press release only in English

Music Classrooms at The Western Academy of Beijing

Beijing, China

studio vapore

A renovation structured by layout, sound, and color

Beijing, China, 2026-03-20 - 

Beijing-based design office studio vapore has completed the renovation of the music classrooms at the Western Academy of Beijing. The project forms part of a broader campus upgrade and reworks existing spaces to support different modes of music education, from individual practice to group rehearsal.


Layout and spatial organisation

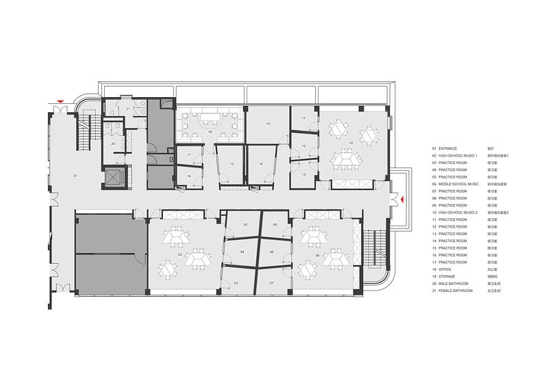
The department is organised as a sequence of classrooms connected by a shared corridor. Each classroom is assigned to a specific teacher and is paired with multiple adjacent practice rooms.


Classrooms accommodate teaching, group work, and ensemble rehearsals, while practice rooms support individual or small group practice. Glass partitions connect the two, maintaining visual continuity and enabling supervision while allowing simultaneous activities. This arrangement allows teaching, rehearsal, and individual practice to take place at the same time within a compact layout.


Sound as a shared condition

Acoustic performance is a key parameter in the project. Developed in collaboration with acoustic engineers, treatments are integrated across walls, ceilings, floors, and built-in elements to manage reverberations and limit sound transfer between rooms.


However, the spaces are not fully isolated. Sound insulation is calibrated to allow a controlled overlap of music across the department. Movement through the corridor is accompanied by the sound of instruments and rehearsals from adjacent rooms, extending the presence of music beyond individual spaces.


Colour as an organising layer

Colour structures the department as a second layer. The three main classrooms are each assigned distinct tones — red, orange, and yellow — corresponding to different age groups. From the corridor, these colours mark each entrance, creating a clear sequence of thresholds and supporting orientations. The entrance to the music area is also defined by a saturated field of colour, extending this identity to the broader building.


Inside the classrooms, teaching areas remain largely neutral. A band of strong colour is introduced along the window side, linking each classroom to its associated practice rooms. Lighting in these spaces is even and consistent.


In contrast, the practice rooms are fully saturated. Each room develops its assigned colour through variations in tone and material. Felt panels, fabrics, and three-dimensional acoustic elements are produced in coordinated shades, while warmer lighting reinforces a more focused atmosphere for rehearsal.


The three-dimensional acoustic tiles are designed and positioned to influence sound within the space, while their arrangement introduces a visual rhythm that references the structure of music.


A defined identity for the music department

The renovation transforms previously neutral classrooms into spaces with a clear identity connected to music. Through the integration of layout, colour, and acoustic considerations, studio vapore organises the department to support both focused practice and shared learning.

Techncial sheet

Project Name: Music Classrooms at The Western Academy of Beijing

Client: The Western Academy of Beijing

Location: Beijing, China

Scope: Interior Renovation

Program: Educational

Size: 700sqm

Designer: studio vapore

Design Director: Erica Borsa

Design Team: Erica Borsa, Yumi Zhang, Hongyu Yu, Martin Zhou

MEP: Yin Xueqin

Acoustic Engineering: Delhom Acoustics

Lighting Design & Consultant: Studio Vapore & Beijing Mostar Technology

General Contractor: Beijing Xiangyang Hongda Construction Co., Ltd.

Custom Furniture Contractor: LMFU Furniture

Photography: Vincent Wu & Shawn Koh

About studio vapore

studio vapore is a multidisciplinary design studio based in Beijing, China, specializing in architecture, interiors, and product design. Founded by Italian Architect Erica Borsa in 2021, the studio integrates storytelling with technical expertise to create thoughtful and imaginative spaces. With a diverse team and a focus on educational design, studio vapore has collaborated with public and private schools across China, including the Western Academy of Beijing.

- 30 -

For more information

  1. www.studiovapore.com

Media contact

Attachments

StudioVapore_WABMusicClassrooms_Chinese
Low-resolution images ~ 2.69 MB
High-resolution tif images ~ 580 MB
High-resolution jpg images ~ 41.3 MB

Terms and conditions

For immediate release

All photos must be published with proper credit. Please reference v2com as the source whenever possible. We always appreciate receiving PDF copies of your articles.

A colorful gallery for the building entrance
Video credit: studio vapore & Vincent Wu
Press kit | 7640-02 - Press release | Music Classrooms at The Western Academy of Beijing - studio vapore - Institutional Architecture - Photo credit: Vincent Wu
Photo credit: Vincent Wu
Download

Very High-resolution image : 13.33 x 20.0 @ 300dpi ~ 7 MB

Press kit | 7640-02 - Press release | Music Classrooms at The Western Academy of Beijing - studio vapore - Institutional Architecture - Photo credit: Vincent Wu
Photo credit: Vincent Wu
Download

Very High-resolution image : 20.0 x 13.33 @ 300dpi ~ 10 MB

Press kit | 7640-02 - Press release | Music Classrooms at The Western Academy of Beijing - studio vapore - Institutional Architecture - Photo credit:  Shawn Koh
Photo credit: Shawn Koh
Download

Very High-resolution image : 20.0 x 13.33 @ 300dpi ~ 13 MB

Press kit | 7640-02 - Press release | Music Classrooms at The Western Academy of Beijing - studio vapore - Institutional Architecture - Photo credit:  Shawn Koh
Photo credit: Shawn Koh
Download

Very High-resolution image : 20.0 x 13.33 @ 300dpi ~ 12 MB

Press kit | 7640-02 - Press release | Music Classrooms at The Western Academy of Beijing - studio vapore - Institutional Architecture - Photo credit: Vincent Wu
Photo credit: Vincent Wu
Download

Very High-resolution image : 13.33 x 17.78 @ 300dpi ~ 7 MB

Press kit | 7640-02 - Press release | Music Classrooms at The Western Academy of Beijing - studio vapore - Institutional Architecture - Photo credit:  Shawn Koh
Photo credit: Shawn Koh
Download

Very High-resolution image : 13.33 x 20.0 @ 300dpi ~ 17 MB

Press kit | 7640-02 - Press release | Music Classrooms at The Western Academy of Beijing - studio vapore - Institutional Architecture - Photo credit: Vincent Wu
Photo credit: Vincent Wu
Download

Very High-resolution image : 13.33 x 19.99 @ 300dpi ~ 11 MB

Press kit | 7640-02 - Press release | Music Classrooms at The Western Academy of Beijing - studio vapore - Institutional Architecture - Photo credit: Vincent Wu
Photo credit: Vincent Wu
Download

Very High-resolution image : 13.33 x 20.0 @ 300dpi ~ 7.8 MB

Press kit | 7640-02 - Press release | Music Classrooms at The Western Academy of Beijing - studio vapore - Institutional Architecture - Photo credit: Vincent Wu
Photo credit: Vincent Wu
Download

Very High-resolution image : 13.33 x 20.0 @ 300dpi ~ 9.1 MB

Press kit | 7640-02 - Press release | Music Classrooms at The Western Academy of Beijing - studio vapore - Institutional Architecture - Photo credit: Vincent Wu
Photo credit: Vincent Wu
Download

Very High-resolution image : 13.33 x 20.0 @ 300dpi ~ 12 MB

Press kit | 7640-02 - Press release | Music Classrooms at The Western Academy of Beijing - studio vapore - Institutional Architecture - Photo credit:  Shawn Koh
Photo credit: Shawn Koh
Download

Very High-resolution image : 20.0 x 13.33 @ 300dpi ~ 11 MB

Press kit | 7640-02 - Press release | Music Classrooms at The Western Academy of Beijing - studio vapore - Institutional Architecture - Photo credit:  Shawn Koh
Photo credit: Shawn Koh
Download

Very High-resolution image : 20.0 x 13.33 @ 300dpi ~ 13 MB

Press kit | 7640-02 - Press release | Music Classrooms at The Western Academy of Beijing - studio vapore - Institutional Architecture - Photo credit: Vincent Wu
Photo credit: Vincent Wu
Download

Very High-resolution image : 13.33 x 20.0 @ 300dpi ~ 11 MB

Press kit | 7640-02 - Press release | Music Classrooms at The Western Academy of Beijing - studio vapore - Institutional Architecture - Photo credit: Vincent Wu
Photo credit: Vincent Wu
Download

Very High-resolution image : 13.33 x 20.0 @ 300dpi ~ 7.7 MB

Press kit | 7640-02 - Press release | Music Classrooms at The Western Academy of Beijing - studio vapore - Institutional Architecture - Photo credit:  Shawn Koh
Photo credit: Shawn Koh
Download

Very High-resolution image : 20.0 x 13.33 @ 300dpi ~ 12 MB

Press kit | 7640-02 - Press release | Music Classrooms at The Western Academy of Beijing - studio vapore - Institutional Architecture - Photo credit: Vincent Wu
Photo credit: Vincent Wu
Download

Very High-resolution image : 13.33 x 20.0 @ 300dpi ~ 11 MB

Press kit | 7640-02 - Press release | Music Classrooms at The Western Academy of Beijing - studio vapore - Institutional Architecture - Photo credit: Vincent Wu
Photo credit: Vincent Wu
Download

Very High-resolution image : 13.33 x 19.99 @ 300dpi ~ 10 MB

Press kit | 7640-02 - Press release | Music Classrooms at The Western Academy of Beijing - studio vapore - Institutional Architecture - Photo credit: Vincent Wu
Photo credit: Vincent Wu
Download

Very High-resolution image : 23.7 x 13.33 @ 300dpi ~ 12 MB

Press kit | 7640-02 - Press release | Music Classrooms at The Western Academy of Beijing - studio vapore - Institutional Architecture - Photo credit: Vincent Wu
Photo credit: Vincent Wu
Download

Very High-resolution image : 13.33 x 20.0 @ 300dpi ~ 9.9 MB

Press kit | 7640-02 - Press release | Music Classrooms at The Western Academy of Beijing - studio vapore - Institutional Architecture - Axonometric View - Photo credit: studio vapore
Axonometric View
Photo credit: studio vapore
Download

Very High-resolution image : 20.41 x 13.6 @ 300dpi ~ 2.7 MB

Press kit | 7640-02 - Press release | Music Classrooms at The Western Academy of Beijing - studio vapore - Institutional Architecture - Floorplan - Photo credit: studio vapore
Floorplan
Photo credit: studio vapore
Download

High-resolution image : 14.14 x 10.0 @ 300dpi ~ 750 KB

You may also like...

Same company
Newsroom | v2com-newswire | Newswire | Architecture | Design | Lifestyle - Press release - Dragon Creche - studio vapore

Beijing, China, 2026-05-07

Dragon Creche

studio vapore

Newsroom | v2com-newswire | Newswire | Architecture | Design | Lifestyle - Press release - The Educational Complex Sirius - ATRIUM

Dubai, United Arab Emirates, 2026-05-06

The Educational Complex Sirius

ATRIUM