Press kit no. 4241-11
Journalists, explore this publication-ready project. Create a free v2com media account to download high-resolution images.
Create a media account
Press Kit | no. 4241-11
Wood Residence
Vives St-Laurent
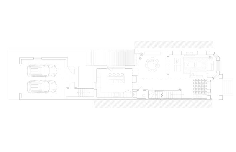
The Wood Residence renovation project focuses primarily on restoring and highlighting the home’s existing features. With a layout typical of Westmount homes, several key elements have been preserved, such as the location of the staircase and the organization of the main living areas: the living room, dining room, and kitchen, which is located at the rear of the house.
As soon as you step inside, a checkerboard pattern of Alpi Verde and Bianco Carrara marble sets a tone that is both classic and contemporary. The oval window - an iconic feature of the facade - inspired the design of the entryway furniture, which consists of a seating area and a vertical storage unit that highlights the window’s character.
In the living room, the addition of built-in bookshelves frames the fireplace and accentuates the natural stone mantel, creating a focal point in the space. The large bay window, characteristic of homes in the area, is complemented by simple, discreet furniture, allowing abundant natural light to flood the room, while offering a view of the large tree in the front yard.
Envisioned as a renovation intended for resale, the project emphasizes materials that are both neutral and distinctive. With this in mind, the original flooring was replaced with pale-toned white oak, introducing a touch of modernity to the space. This commitment to balance continues in the treatment of the staircase leading to the upper floor, which perfectly illustrates the approach by combining classic and contemporary styles.
The existing banister, which was in poor condition, was redesigned, with a composition of moldings added to integrate it naturally into the space. The painted steel handrail, recessed into the stringer, is a subtle detail that reflects the care taken in every aspect of the project and the result of close collaboration among the various parties involved.
The kitchen, located at the back of the house, remains in its original position. The addition of an anthracite French door creates a subtle contrast with the rest of the space and establishes a direct connection to the outdoor terrace. The marble countertop brings timeless elegance to the room, while the addition of an island enhances functionality, perfectly suited to contemporary living.
Underneath the stairs, a small powder room has been discreetly integrated with a hidden door, custom-designed to align with the existing moldings and blend seamlessly into the walls. The marble sink, crafted as a solid block, integrates harmoniously into the space while serving as a visual accent and a nod to the entryway.
On the upper floor, the home features three bedrooms and two bathrooms. The master bedroom is the highlight of this level. The addition of a spacious ensuite bathroom enhances the overall experience, while two French doors with textured glass provide both privacy and natural light. The large wall-to-wall vanity, featuring a thicker countertop, adds an elegant and refined touch, distinct from the other areas. The walk-in shower draws inspiration from boutique hotel concepts, which guided the initial design considerations for the suite.
The project respects the existing structure while successfully combining preservation and enhancement. Several moldings were redesigned and added to maintain the unique character of this house, typical of the neighborhood. By ensuring continuity between design concepts and execution, the Wood Residence achieves a balance between honoring the site and meeting contemporary needs, with the various modifications blending seamlessly into the existing structure.
Technical sheet
Firm: Vives St-Laurent
Architecture: Philip Hazan
Contractor: Modulor
Cabinetmaker: Loeven Morcel
Location: Westmount, Montreal, Quebec, Canada
Area: 2 800 sq. ft.
Year of completion: 2025
Photo credit: Alex Lesage
About Vives St-Laurent
Vives St-Laurent conceptualizes and implements organic and lively environments at the intersection of functionalism and aesthetics. Founded in 2018 by Laurence Ouimet-Vives and Lysanne St-Laurent, the interior design firm focuses on creating timeless spaces, suspended in time, where lines are straight and geometric, and textures evoke both the future and the past.
Always on the lookout for best practices in interior design, the Vives St-Laurent team supports its clients through a collaborative approach based on listening and design thinking. The firm is composed of diverse talents, enabling a multidisciplinary offering across corporate, residential, and commercial sectors.
For more information
Media contact
- Vives St-Laurent
- Lysanne St-Laurent
- lysanne@vivesstlaurent.com
- 514-679-7433
Attachments
Terms and conditions
For immediate release
All photos must be published with proper credit. Please reference v2com as the source whenever possible. We always appreciate receiving PDF copies of your articles.
Publication Rights for Books
The images in this press kit are not royalty-free for use in books or monographs.
You may download the material, but any publication in such media requires prior written authorization and a specific copyright negotiation for publishing (see media contact).
Very High-resolution image : 18.24 x 20.35 @ 300dpi ~ 37 MB
Very High-resolution image : 17.6 x 24.11 @ 300dpi ~ 23 MB
Very High-resolution image : 12.27 x 18.4 @ 300dpi ~ 13 MB
Very High-resolution image : 20.47 x 25.93 @ 300dpi ~ 30 MB
Very High-resolution image : 26.99 x 19.36 @ 300dpi ~ 31 MB
Very High-resolution image : 19.1 x 24.75 @ 300dpi ~ 26 MB
Very High-resolution image : 25.91 x 17.86 @ 300dpi ~ 27 MB
Very High-resolution image : 20.2 x 15.72 @ 300dpi ~ 20 MB
High-resolution image : 12.34 x 16.45 @ 300dpi ~ 12 MB
Very High-resolution image : 19.46 x 26.0 @ 300dpi ~ 28 MB
Very High-resolution image : 21.75 x 17.72 @ 300dpi ~ 23 MB
Very High-resolution image : 15.94 x 21.66 @ 300dpi ~ 20 MB
Very High-resolution image : 27.36 x 18.64 @ 300dpi ~ 25 MB
Very High-resolution image : 27.36 x 19.16 @ 300dpi ~ 30 MB
Very High-resolution image : 19.38 x 24.22 @ 300dpi ~ 23 MB
Very High-resolution image : 14.22 x 19.13 @ 300dpi ~ 14 MB
Very High-resolution image : 19.01 x 26.34 @ 300dpi ~ 30 MB
Very High-resolution image : 14.77 x 22.52 @ 300dpi ~ 19 MB
Very High-resolution image : 18.74 x 24.45 @ 300dpi ~ 27 MB
Very High-resolution image : 20.01 x 26.28 @ 300dpi ~ 29 MB
Very High-resolution image : 18.08 x 25.95 @ 300dpi ~ 25 MB
Very High-resolution image : 18.03 x 24.81 @ 300dpi ~ 27 MB
Very High-resolution image : 19.23 x 24.52 @ 300dpi ~ 27 MB
Very High-resolution image : 34.0 x 22.0 @ 300dpi ~ 750 KB
Very High-resolution image : 34.0 x 22.0 @ 300dpi ~ 870 KB
You may also like...
Montreal, Canada, 2023-05-16
Montpellier Residence: A Renovation Combining Elegance and Architectural Heritage
Vives St-Laurent
Montréal, Canada, 2021-10-18
Appartement Saint-Gérard: residential transformation for a young Montreal family
Vives St-Laurent
Sydney, Australia, 2026-05-19
Bondi Beach Villa Reinterprets the Classical Loggia for Coastal Living
Common Office
Toronto, Canada, 2026-04-14
Montrose Sixplex: A New Housing Model for Gentle Density on a Residential Street in Toronto
Gabriel Fain Architects
Laurier-Station, Canada, 2026-03-26






















