Dossier de presse no. 1432-05

Journalistes! Découvrez ce projet prêt à publier. Créez gratuitement un compte média v2com pour télécharger les images haute résolution.

Créez un compte média
Dossier de presse - Communiqué de presse - Office @ 63 - Sanjay Puri Architects

Dossier de presse | no. 1432-05

Communiqué seulement en anglais

Office @ 63

Navi Mumbai, Inde

Sanjay Puri Architects

Mumbai, Inde, 17-12-2019 - 

A series of architectural volumes create an office for a furniture contract company within their factory.


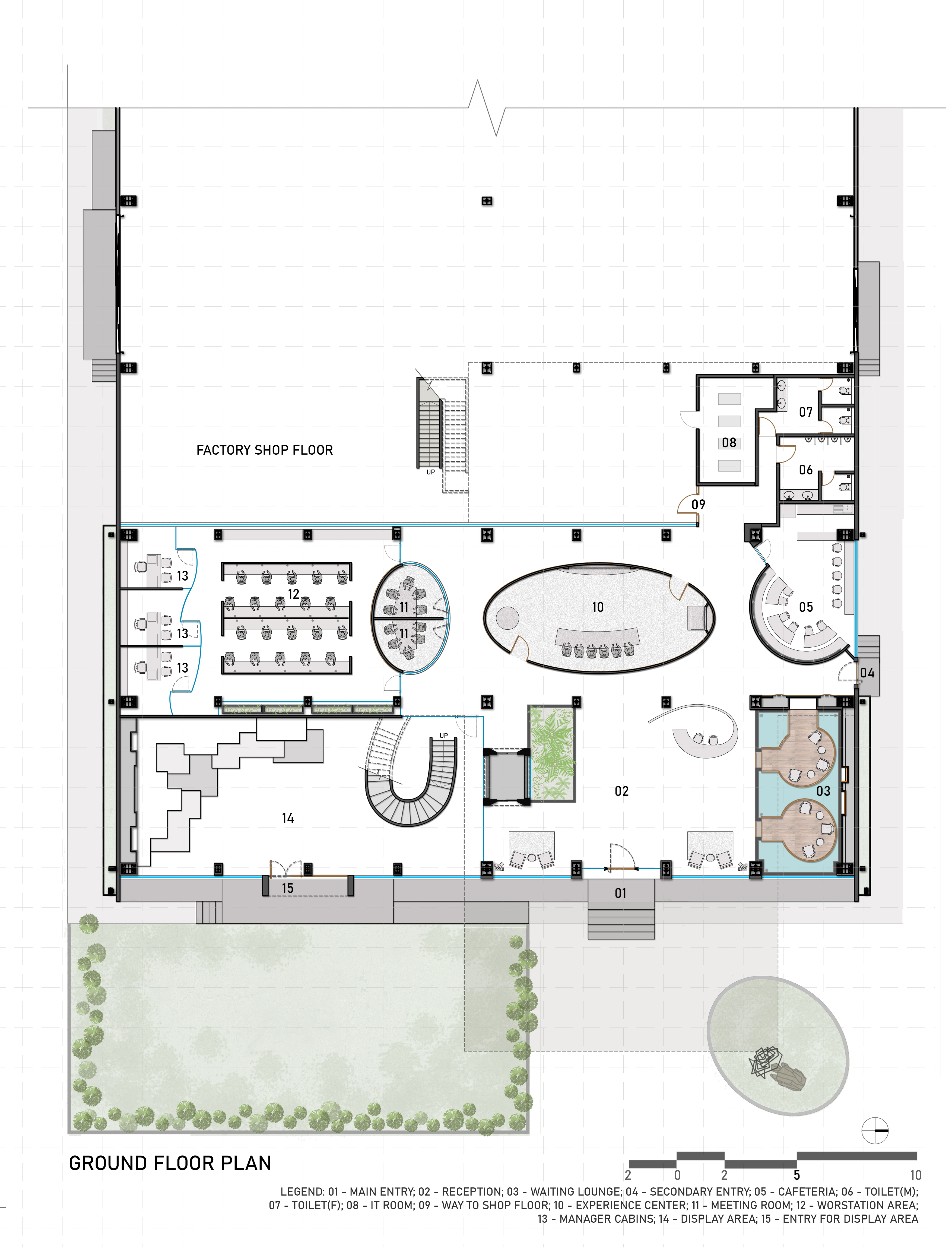
Volumes within volumes lend each functional part of the office their own identity. A large reception space is punctuated by a 36’ high seating area in the form of elliptical pods floating in a shallow reflecting pool at one end and a landscaped courtyard at the other end.


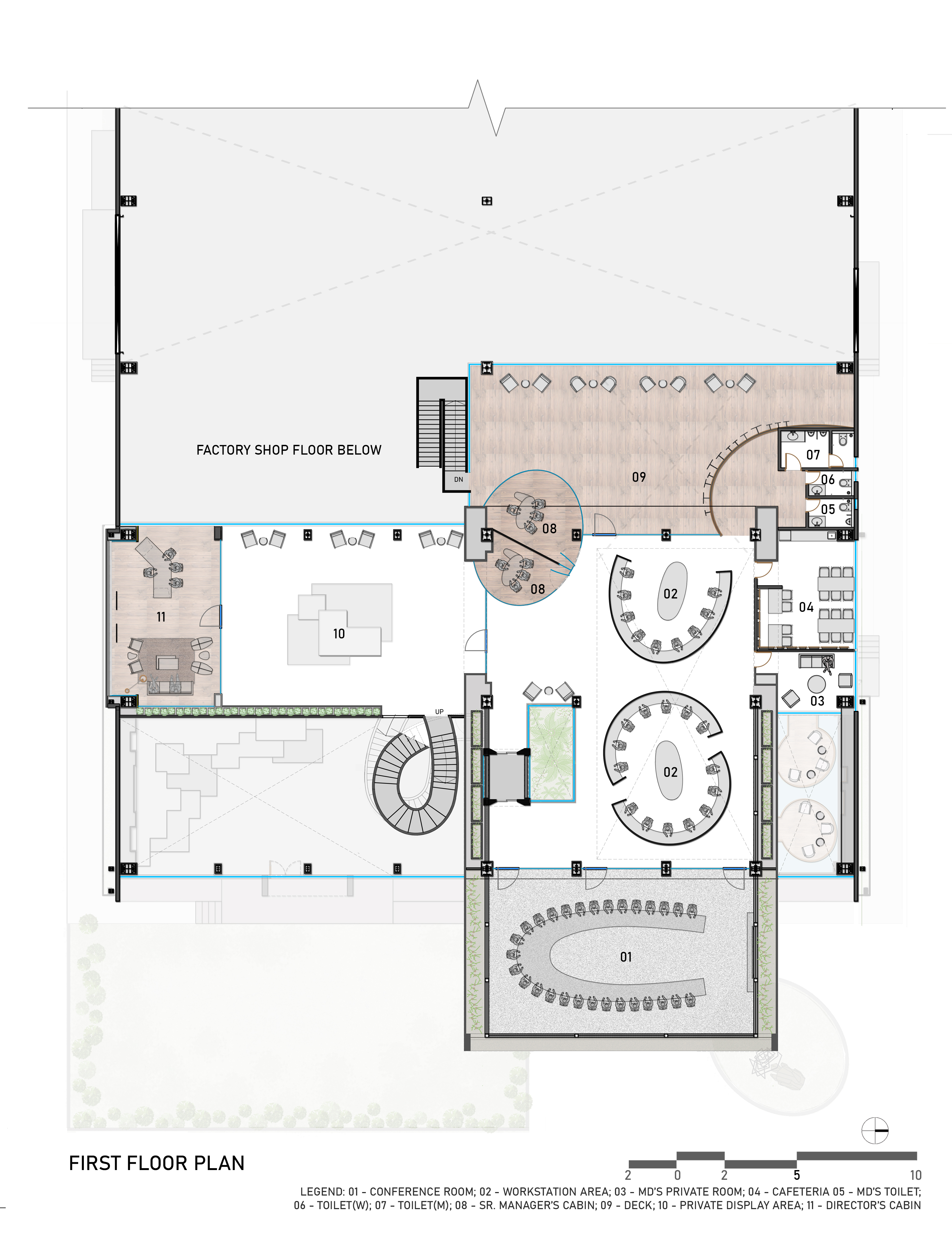
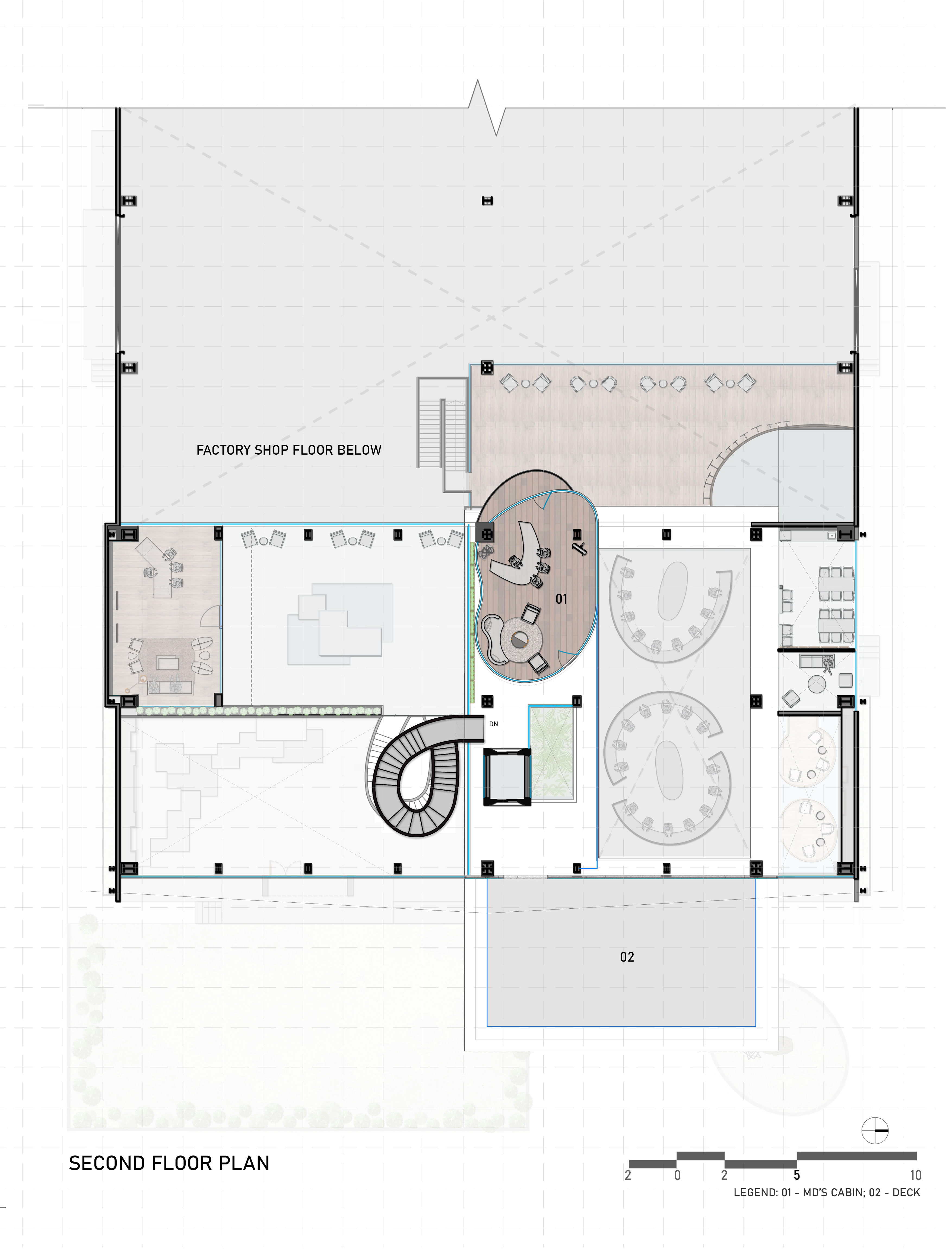
Towards one side, a 36’ high multifunctional space with movable modular platforms is designed to be used as a furniture display space, a seminar hall or a social interaction space. A cantilevered sweeping stairway spirals asymmetrically through this volume connecting the 3 levels of the office.


Each of the spaces within the office is formed by elliptical volumes that create organic circulation spaces between them. A material palette of glass, metallic paint walnut and wood, sound insulation boards, cork and concrete accentuate each area differently.

Lighting is integrated into the design in multiple ways. Perforated partitions of wood fused with Plexiglas, pyramidal modules ceilings, a conference room with an installation of light-infused aluminium pipes.


On each level, large openings allow natural light into the internal spaces from the northern side and unobstructed views of the factory on the southern side.


Exposed ducting & exposed structural steel supports allude to the industrial space of the factory along with the steel finishes for most of the partitions.


Each of the workstation areas, the discussion rooms, the cabins, conference room, multi-functional space & video conferencing room based upon the client’s brief is individual in identity and arranged organically over 3 levels forming an architectural interior with a composition of varying volumes.

 

Technical sheet

CLIENT: Narsi & Associates

AREA: 20,000 sq.ft.

LOCATION: Navi Mumbai, India

PRINCIPAL ARCHITECT: Sanjay Puri

PROJECT ARCHITECT: Ishveen Bhasin, Abhishek Kadian


About Sanjay Puri Architects

Sanjay Puri, alumni of Mayo College, Ajmer and St.Xaviers College, Mumbai graduated from the Academy of Architecture, Mumbai in 1988 and is the principal architect of the firm Sanjay Puri Architects.


With a young team of over 72 architects, the firm has a diverse portfolio of projects including townships, residential developments, software parks, hotels, retail malls, schools, and smaller individual projects.


- 30 -

Pour plus d’informations

  1. www.sanjaypuriarchitects.com

Contact média

Pièces jointes

Ground Floor Plan
First Floor Plan
Second Floor Plan
Section
Concept Model
Images basse résolution ~ 6 Mo
Images tif haute résolution ~ 1,1 Go

Termes et conditions

Pour diffusion immédiate

La mention des crédits photo est obligatoire. Merci d’inclure la source v2com lorsque possible et il est toujours apprécié de recevoir les versions PDF de vos articles.

Dossier de presse | 1432-05 - Communiqué de presse | Office @ 63 - Sanjay Puri Architects - Design d’intérieur commercial - 01 Reception - Crédit photo : Vinesh Gandhi
01 Reception
Crédit photo : Vinesh Gandhi
Télécharger

Image très haute résolution : 24.42 x 16.3 @ 300dpi ~ 25 Mo

Dossier de presse | 1432-05 - Communiqué de presse | Office @ 63 - Sanjay Puri Architects - Design d’intérieur commercial - 02 Waiting Lounge a - Crédit photo : Vinesh Gandhi
02 Waiting Lounge a
Crédit photo : Vinesh Gandhi
Télécharger

Image très haute résolution : 16.28 x 24.4 @ 300dpi ~ 19 Mo

Dossier de presse | 1432-05 - Communiqué de presse | Office @ 63 - Sanjay Puri Architects - Design d’intérieur commercial - 02 Waiting Lounge b - Crédit photo : Vinesh Gandhi
02 Waiting Lounge b
Crédit photo : Vinesh Gandhi
Télécharger

Image très haute résolution : 16.31 x 24.44 @ 300dpi ~ 18 Mo

Dossier de presse | 1432-05 - Communiqué de presse | Office @ 63 - Sanjay Puri Architects - Design d’intérieur commercial - 04 Corridor a - Crédit photo : Vinesh Gandhi
04 Corridor a
Crédit photo : Vinesh Gandhi
Télécharger

Image très haute résolution : 24.42 x 16.3 @ 300dpi ~ 26 Mo

Dossier de presse | 1432-05 - Communiqué de presse | Office @ 63 - Sanjay Puri Architects - Design d’intérieur commercial - 05 Corridor b - Crédit photo : Vinesh Gandhi
05 Corridor b
Crédit photo : Vinesh Gandhi
Télécharger

Image très haute résolution : 24.44 x 16.31 @ 300dpi ~ 30 Mo

Dossier de presse | 1432-05 - Communiqué de presse | Office @ 63 - Sanjay Puri Architects - Design d’intérieur commercial - 06 Ground Floor Meeting Room a - Crédit photo : Vinesh Gandhi
06 Ground Floor Meeting Room a
Crédit photo : Vinesh Gandhi
Télécharger

Image très haute résolution : 24.25 x 16.32 @ 300dpi ~ 23 Mo

Dossier de presse | 1432-05 - Communiqué de presse | Office @ 63 - Sanjay Puri Architects - Design d’intérieur commercial - 07 Ground Floor Meeting Room b - Crédit photo : Vinesh Gandhi
07 Ground Floor Meeting Room b
Crédit photo : Vinesh Gandhi
Télécharger

Image très haute résolution : 24.46 x 16.32 @ 300dpi ~ 24 Mo

Dossier de presse | 1432-05 - Communiqué de presse | Office @ 63 - Sanjay Puri Architects - Design d’intérieur commercial - 08 Staircase a - Crédit photo : Vinesh Gandhi
08 Staircase a
Crédit photo : Vinesh Gandhi
Télécharger

Image très haute résolution : 16.03 x 23.8 @ 300dpi ~ 16 Mo

Dossier de presse | 1432-05 - Communiqué de presse | Office @ 63 - Sanjay Puri Architects - Design d’intérieur commercial - 09 Staircase b - Crédit photo : Vinesh Gandhi
09 Staircase b
Crédit photo : Vinesh Gandhi
Télécharger

Image très haute résolution : 15.66 x 23.47 @ 300dpi ~ 17 Mo

Dossier de presse | 1432-05 - Communiqué de presse | Office @ 63 - Sanjay Puri Architects - Design d’intérieur commercial - 10 Display Area a - Crédit photo : Vinesh Gandhi
10 Display Area a
Crédit photo : Vinesh Gandhi
Télécharger

Image très haute résolution : 15.99 x 23.19 @ 300dpi ~ 17 Mo

Dossier de presse | 1432-05 - Communiqué de presse | Office @ 63 - Sanjay Puri Architects - Design d’intérieur commercial - 11 Display Area b - Crédit photo : Vinesh Gandhi
11 Display Area b
Crédit photo : Vinesh Gandhi
Télécharger

Image très haute résolution : 16.25 x 24.17 @ 300dpi ~ 17 Mo

Dossier de presse | 1432-05 - Communiqué de presse | Office @ 63 - Sanjay Puri Architects - Design d’intérieur commercial - 12 Staircase c - Crédit photo : Vinesh Gandhi
12 Staircase c
Crédit photo : Vinesh Gandhi
Télécharger

Image très haute résolution : 16.2 x 24.22 @ 300dpi ~ 15 Mo

Dossier de presse | 1432-05 - Communiqué de presse | Office @ 63 - Sanjay Puri Architects - Design d’intérieur commercial - 13 Staircase d - Crédit photo : Vinesh Gandhi
13 Staircase d
Crédit photo : Vinesh Gandhi
Télécharger

Image très haute résolution : 16.2 x 24.27 @ 300dpi ~ 15 Mo

Dossier de presse | 1432-05 - Communiqué de presse | Office @ 63 - Sanjay Puri Architects - Design d’intérieur commercial - 14 First Floor Workstation Area a - Crédit photo : Vinesh Gandhi
14 First Floor Workstation Area a
Crédit photo : Vinesh Gandhi
Télécharger

Image très haute résolution : 24.44 x 16.31 @ 300dpi ~ 23 Mo

Dossier de presse | 1432-05 - Communiqué de presse | Office @ 63 - Sanjay Puri Architects - Design d’intérieur commercial - 15 First Floor Workstation Area b - Crédit photo : Vinesh Gandhi
15 First Floor Workstation Area b
Crédit photo : Vinesh Gandhi
Télécharger

Image très haute résolution : 24.44 x 16.31 @ 300dpi ~ 24 Mo

Dossier de presse | 1432-05 - Communiqué de presse | Office @ 63 - Sanjay Puri Architects - Design d’intérieur commercial - 16 First Floor - Conference Room - Crédit photo : Vinesh Gandhi
16 First Floor - Conference Room
Crédit photo : Vinesh Gandhi
Télécharger

Image très haute résolution : 23.85 x 16.26 @ 300dpi ~ 22 Mo

Dossier de presse | 1432-05 - Communiqué de presse | Office @ 63 - Sanjay Puri Architects - Design d’intérieur commercial - 17 First Floor - Manager's Cabin - Crédit photo : Vinesh Gandhi
17 First Floor - Manager's Cabin
Crédit photo : Vinesh Gandhi
Télécharger

Image très haute résolution : 24.44 x 16.31 @ 300dpi ~ 23 Mo

Dossier de presse | 1432-05 - Communiqué de presse | Office @ 63 - Sanjay Puri Architects - Design d’intérieur commercial - 18 First Floor - Director's Cabin - Crédit photo : Vinesh Gandhi
18 First Floor - Director's Cabin
Crédit photo : Vinesh Gandhi
Télécharger

Image très haute résolution : 24.33 x 16.3 @ 300dpi ~ 26 Mo

Vous pourriez également aimer...

Même entreprise
Salle de presse | v2com-newswire | Fil de presse | Architecture | Design | Art de vivre - Communiqué de presse - CREST NINE - Sanjay Puri Architects

Mumbai, Inde, 05-03-2026

CREST NINE

Sanjay Puri Architects

Même entreprise
Salle de presse | v2com-newswire | Fil de presse | Architecture | Design | Art de vivre - Communiqué de presse - Stella - Sanjay Puri Architects

Mumbai, Inde, 13-02-2026

Stella

Sanjay Puri Architects

Même entreprise
Salle de presse | v2com-newswire | Fil de presse | Architecture | Design | Art de vivre - Communiqué de presse - Cielo - Sanjay Puri Architects

Mumbai, Inde, 02-02-2026

Cielo

Sanjay Puri Architects

Même entreprise
Salle de presse | v2com-newswire | Fil de presse | Architecture | Design | Art de vivre - Communiqué de presse - Stylera - Sanjay Puri Architects

Mumbai, Inde, 28-07-2025

Stylera

Sanjay Puri Architects

Même entreprise
Salle de presse | v2com-newswire | Fil de presse | Architecture | Design | Art de vivre - Communiqué de presse - NEZO - Sanjay Puri Architects

Mumbai, Inde, 24-10-2024

NEZO

Sanjay Puri Architects

Même entreprise
Salle de presse | v2com-newswire | Fil de presse | Architecture | Design | Art de vivre - Communiqué de presse - Les bureaux dans la cour - Sanjay Puri Architects
Même entreprise
Salle de presse | v2com-newswire | Fil de presse | Architecture | Design | Art de vivre - Communiqué de presse - Hotel Aria - Sanjay Puri Architects

Mumbai, Inde, 23-03-2020

Hotel Aria

Sanjay Puri Architects

Salle de presse | v2com-newswire | Fil de presse | Architecture | Design | Art de vivre - Communiqué de presse - TANE - MATERIA

Ville de Mexico, Mexique, 25-05-2026

TANE

MATERIA

Salle de presse | v2com-newswire | Fil de presse | Architecture | Design | Art de vivre - Communiqué de presse - La Crèche du Dragon - studio vapore

Beijing, Chine, 07-05-2026

La Crèche du Dragon

studio vapore